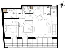
Situé en plein coeur du bourg de Pessac, cet appartement bénéficie d'un emplacement exceptionnel. Véritable centre névralgique de la commune, le bourg de Pessac offre un cadre de vie unique alliant charme, dynamisme et praticité. À quelques pas, vous trouverez toutes les commodités essentielles : commerces de proximité, marché, restaurants, écoles et services, le tout dans une atmosphère conviviale et animée. Parfaitement desservi par les transports en commun, dont le tramway, il permet un accès rapide à Bordeaux tout en profitant d'un cadre de vie plus paisible et verdoyant. Niché au sein d'une résidence moderne et intimiste à taille humaine, cet appartement vous offre ainsi une adresse rare, idéale pour une vie quotidienne facile et agréable. Ce T3 de 68 m2, situé au deuxième étage, propose un agencement fonctionnel et lumineux. L'entrée avec placard s'ouvre sur une belle pièce de vie avec cuisine ouverte et cellier attenant, donnant accès à une vaste terrasse de 20m2, idéale pour profiter des beaux jours car exposition sud. L'espace nuit comprend deux chambres (12m2 et 10m2), une salle d'eau confortable double vasque, et un WC indépendant. Un appartement pensé pour le confort au quotidien, dans un cadre moderne et raffiné.
Une place de parking sécurisée complète ce bien.
- Frais de Notaires Réduits - Garanties - RE 2020 - Exonération de Taxe Foncière - Très bientot Disponible - ...
AVEC ASCENSEUR - TERRASSE - PARKING - EXPO SUD
Honoraires à la charge du vendeur. Dans une copropriété de 15 lots. Aucune procédure n'est en cours. DPE en cours. Les informations sur les risques auxquels ce bien est exposé sont disponibles sur le site Géorisques : georisques.gouv.fr.