DAX - T3 neuf dans une résidence entièrement rénovée
Dax 40100
0
Honoraires à la charge du vendeur.
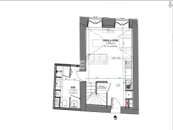
DAX Appartement de 58,83 m2 situé au sein d'une bâtisse restaurée de 10 logements, offrant un patio particulièrement agréable. Ce duplex se compose d'une pièce de vie avec cuisine équipée, d'une salle d'eau aménagée et d'un WC. A l'étage se trouve un pallier qui dessert deux jolies chambres. Idéal tant pour une résidence principale que pour un investissement locatif, cet appartement présente de nombreux atouts pour un primo-accédant ou un investisseur. Sa situation en plein coeur du centre-ville permet un accès immédiat à toutes les commodités. Pour plus d'informations, n'hésitez pas à me contacter : Catherine Palacios EI Réseau REGM 06 64 83 54 22 catherinepalacios@regm.immo - Annonce rédigée et publiée par un Agent Mandataire -
Duplex
58.83 m²
5 000 €
3
2
1
1
2 sur 3
59 € / mois
Contact PALACIOS CATHERINE
Contacter gratuitement à l'aide du formulaire ci-dessous.