DECINES-CHARPIEU - Maison rénovée 5 pièces de 125 m² avec ga
Décines-Charpieu 69150
0
Honoraires à la charge du vendeur.
DÉCINES-CHARPIEU - À proximité des transports et des commerces, dans un quartier calme et prisé, belle maison 5 pièces de 134 m² (110 m² habitable) entièrement rénovée et équipée avec prestations haut de gamme sur un terrain de 400 m².
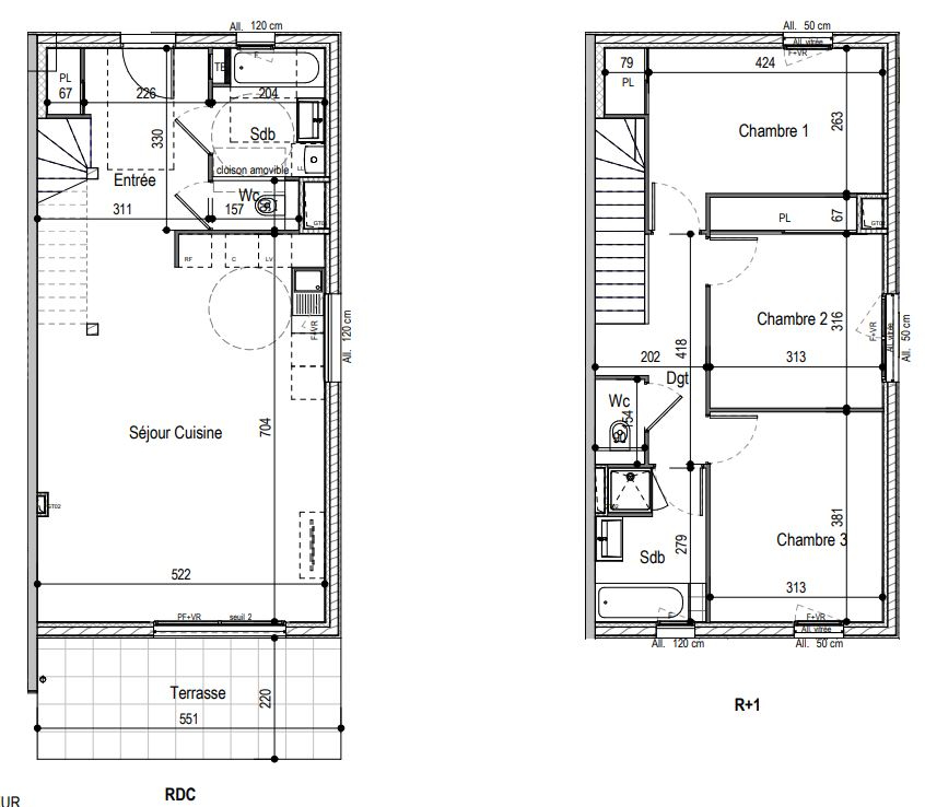
Au rez-de-chaussée : une entrée avec placard aménagé mène à une spacieuse pièce de vie de 52 m² composée d'une cuisine ouverte (meublée) et d'un séjour double, idéale pour partager des moments conviviaux. À l'étage : un dégagement dessert deux élégantes suites parentales avec salle d'eau et dressings, une chambre supplémentaire, une salle de bains baignoire avec WC ainsi qu'une buanderie. Un garage de 24 m² complète ce bien avec porte automatisée.
On trouve des écoles du primaire et du secondaire à moins de 10 minutes à pied. Côté transports, il y a six lignes de bus ainsi que deux stations de tramway T3 et T7 à proximité pour relier le centre ville ou l'aéroport St Exupéry en 20mn env. Les informations sur les risques auxquels ce bien est exposé sont disponibles sur le site Géorisques : www.georisques.gouv.fr. Prenez contact avec votre agence immobilière CESAR ET BRUTUS pour une première visite de cette maison à vendre. REF GDE-7341.1
Honoraires à la charge du vendeur. Classe énergie A, Classe climat A Montant estimé des dépenses annuelles d'énergie pour un usage standard : entre 560.00 et 810.00 sur les années 2021, 2022 et 2023 (abonnements compris). Les informations sur les risques auxquels ce bien est exposé sont disponibles sur le site Géorisques : georisques.gouv.fr.