DÉJÀ VENDU !!! BORDEAUX- PROCHE DU LYCÉE MONTAIGNE- APPARTEMENT T3 + CAVE- AVEC DEFICIT FONCIER !
Bordeaux 33000
0
Honoraires à la charge du vendeur.
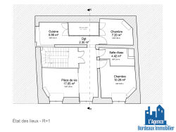
DÉJA VENDU !!! BORDEAUX- PROCHE DU LYCÉE MONTAIGNE ET DE SAINT-MICHEL- TRAM B: MUSÉE D'AQUITAINE et A-C-D: PORTE DE BOURGOGNE. Notre agence vous propose en Secteur Sauvegardé, au sein d'un immeuble en pierre composé de 4 logements, cet appartement 3 pièces d'une superficie de 50 m² libre et avec des travaux à prévoir ! Vous disposerez également d'un lot de cave d'environ 8m² avec une belle hauteur sous plafond. Des travaux de copropriété sont à venir et inclus dans le prix de vente, à savoir le ravalement de façade en pierre, des parties communes et de la toiture-zinguerie... Commerces, Bus et Tram A- B- C- D à proximité. IDÉAL INVESTISSEMENT PATRIMONIAL - DÉFICIT FONCIER ! PLUSIEURS LOTS DISPONIBLES... HUGO IMMOBILIER et ASSOCIES. Hugo COLOMBIER Tel: O6.16.34.32.92. Copropriété de 4 lots ().