Honoraires à la charge de l'acquéreur (Prix hors honoraires : 208000 euros).
Au coeur d'une copropriété arborée, calme et résidentielle, découvrez ce 3 pièces de 54,47m2 traversant, offrant une belle exposition Sud-Est dans le séjour et un véritable potentiel de transformation.
À seulement 200 mètres du tramway T6, arrêt Soleil Levant, permettant de rejoindre rapidement la ligne 13 du métro, l'adresse combine praticité des transports et cadre de vie agréable, à l'écart des grands axes.
La résidence construite au début des années 60 est composée de trois bâtiments, implantée dans un environnement verdoyant et paisible avec gardien. Elle dispose de locaux à vélos et d'un jardin d'enfants sécurisé.
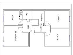
L'appartement est un 3 pièces de 54,47m2 situé au 4ème et dernier étage sans ascenseur : Entrée, séjour, cuisine à transformer en une grande pièce de vie de 24m2, salle de bain et deux chambres de 10m2 chacune avec placards intégrés. Petit balcon accessible depuis le séjour, cave en sous-sol.
L'appartement est entièrement à rénover, ce qui en fait une toile blanche idéale pour créer un intérieur à votre image : volumes ouverts, cuisine conviviale, salle de bains optimisée, rangements sur mesure.
Ce que nous aimons particulièrement : - Emplacement résidentiel, calme, - Proximité immédiate du tramway, - Disposer d'un appartement entièrement rénové, - Gardien, - Stationnements possible dans la voie privée.
Cet appartement pourra intéresser particulièrement : - Un primo accédant, - Un acquéreur souhaitant concevoir son appartement sur mesure, - Un investisseur à la recherche d'un bien à fort potentiel, - Un projet patrimonial avec valorisation après rénovation.
Diagnostic de performance énergétique (DPE) : Classe E Consommation énergétique : 327 kWhEP/m2.an Classe E Émission de gaz à effet de serre : 44 kg éqCO2/m2.an Classe B Estimation des coûts annuels d'énergie entre 1.500 et 2.070
Prix net vendeur : 208.000 Prix honoraires d'agence inclus : 220.000 Honoraires forfaitaires de 12.000 TTC à la charge de l'acquéreur
Une vraie opportunité pour celles et ceux qui savent se projeter et veulent créer un lieu de vie qui leur ressemble, dans un secteur recherché et bien desservi.
Contactez-nous pour le découvrir et laissez-vous séduire !
Votre conseiller Feelhoome : Fondateur - Francois PLACET Carte T CPI 9201 2020 000 045 302 RCP 153006 L
54.47 m²
4 039 €
3
2
1
1 (séparé)
4 sur 4
5.77 %
140.00 € / mois
1960
1
Oui
Oui (336 lots)
Consommations énergétiques
Logement économe
327
Logement énergivore (kWhEP/m2/an)
Émissions de gaz à effet de serre
Faible émission de GES
44
Forte émission de GES(kgeqCO2/m2/an)
Contact Feelhoome
Contacter gratuitement à l'aide du formulaire ci-dessous.