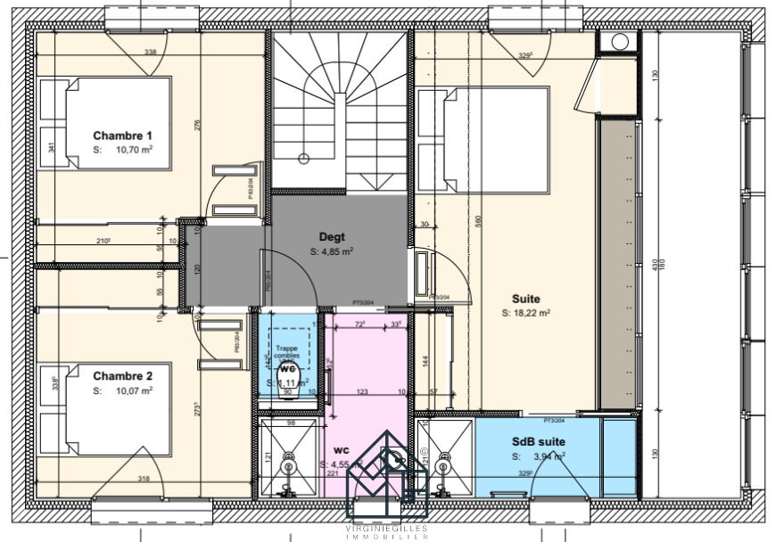
SNM_10499 PARLEZ-MOI D'IMMO vous propose ce nouveau projet d'appartements de standing type T4 de 135 m², avec terrasse de 45m2 exposée Sud-Est. Chauffage individuel au sol par pompe à chaleur. Nombreuses prestations haut de gamme. Menuiseries doubles vitrages PVC avec volets roulants motorisés, Le logement sera livré entièrement terminé (sols,peintures salle de bain, faïences murales...) Il ne restera que la cuisine à poser !Garage en supplément disponible au sous sol.Secteur calme à proximité de l'école, des transports en communs et des commerces de Savigneux. Dans un quartier en pleine construction au coeur du centre ville.Mentions légales: les honoraires sont à la charge du vendeur, notre barème est consultable sur notre site. Hors DPE, hors GES. le bien est soumis au régime de copropriété, nombre de lots: 28, aucune procédure en cours menée sur le fondement des articles 29-1 A et 29-1 de la loi n°65-557 du 10 juillet 1965 et de l'article L.615-6 du CCH. Pour toutes informations complémentaires PARLEZ-MOI D'IMMO Montbrison vous propose de contacter EMILIE CLAIRET votre conseiller commercial immobilier Indépendant (R.S.A.C. de SAINT-ETIENNE N° 807561808) spécialisé sur le secteur de MONTBRISON (42600) au O6 25 74 03 21.
Honoraires à la charge du vendeur. Dans une copropriété de 28 lots. Aucune procédure n'est en cours. Non soumis au DPE. Les informations sur les risques auxquels ce bien est exposé sont disponibles sur le site Géorisques : georisques.gouv.fr.