VOTRE NOUVEAU HAVRE DE PAIX EN COEUR DE VILLE - DEUX TERRASSES
Situé dans l'un des secteurs les plus recherchés de Bordeaux, ce magnifique appartement T3 de 70 m² profite d'un environnement exceptionnel, au coeur d'un cadre de vie dynamique et inspirant. Musées, galeries, salles de spectacle, restaurants réputés, commerces de proximité et lieux emblématiques bordent le quartier, sans oublier la proximité immédiate des quais, véritables lieux de promenade et de vie, très appréciés des Bordelais comme des visiteurs. Un emplacement privilégié, alliant effervescence culturelle, attractivité touristique et qualité de vie, où tout se fait à pied.
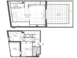
Au 1er niveau, vous trouverez une entrée avec deux placards vous accompagnant dans l'espace nuit avec deux chambres avec placards dont une ayant un accès à une loggia de 10m2. Pour compléter ce niveau, une salle d'eau ainsi qu'un WC indépendant.
À l'étage, vous découvrirez une magnifique pièce de vie de 31m2 très lumineuse grâce à ses deux vélux, sa baie vitrée et son exposition Sud. Cette pièce se prolonge par une splendide terrasse de 31m2 totalement au calme et entourée de végétation, un véritable havre de paix.
Une place de parking couverte et sécurisée complète ce bien en SUS obligatoire (20 000).
- Frais de notaire OFFERTS - RE 2020 - Garanties - Exonération de Taxe Foncière - ...
Visuel non contractuel - suggestions d'aménagement
VOTRE NOUVEAU HAVRE DE PAIX EN COEUR DE VILLE - DEUX TERRASSES
Honoraires à la charge du vendeur. Dans une copropriété de 37 lots. Aucune procédure n'est en cours. Non soumis au DPE. Les informations sur les risques auxquels ce bien est exposé sont disponibles sur le site Géorisques : georisques.gouv.fr.