DERNIER T2 DANS RESIDENCE DE STANDING AVEC PISCINE FRAIS DE NOTA
Béziers 34500
0
Honoraires à la charge du vendeur.
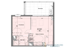
Dans le quartier très recherché du Frigoulas, proche de la Crouzette à BEZIERS, l'Etude Immobilière Saint Paul vous propose les derniers lots dans cette Belle Résidence de standing avec Piscine. Idéalement située à l' entrée de ville, à quelques minutes du centre-ville et de toutes les commodités. La résidence se compose de 3 bâtiments de 3 étages, chacun de 30 logements environ, avec en son centre, une piscine pour les résidents. Entièrement clôturée et sécurisée, avec portail électrique, ascenseur et vidéophone. Vous aurez un stationnement privé en sous sol et surtout une terrasse afin de profiter pleinement du climat doux et ensoleillé de notre belle ville! Dispos un dernier T2 à 175000 euros et T3 dès 237000; les appartements sont spacieux et optimisés, et offrent de beaux séjours lumineux et d'agréables chambres. Cette résidence est l'assurance d'un grand confort, au travers de logements économes en énergie et respectueux de l'environnement. Frais d 'agence compris. FRAIS DE NOTAIRE REDUITS RDV pour plus de renseignements et visite auprès de SARAH COTTIN au 0660783476 Consultante Immobilière, Inscrite au RSAC BEZIERS 904478542
Honoraires à la charge du vendeur. Dans une copropriété de 90 lots. Aucune procédure n'est en cours. Non soumis au DPE. Les informations sur les risques auxquels ce bien est exposé sont disponibles sur le site Géorisques : georisques.gouv.fr.
Votre conseiller ETUDE IMMOBILIERE SAINT PAUL : Sarah COTTIN Agent commercial (Entreprise individuelle) RSAC 904478542 RCP 127 100 479. Etude Immobilière Saint-Paul Acheter ou Vendez en conscience !
45.57 m²
3 840 €
23 m²
2
1
1
1
105.00 € / mois
2025
Est
Oui
1
1
Oui
Oui (90 lots)
Contact Sarah COTTIN
Contacter gratuitement à l'aide du formulaire ci-dessous.