Derniet étage - Appartement de Prestige à Caudéran, Bordeaux
Bordeaux 33200
0
Honoraires à la charge du vendeur.
UN CADRE D'EXCEPTION DANS UN BIEN DE GRAND STANDING
Découvrez cet appartement en dernier étage dans une résidence intimiste de 6 lots (un par étage) de haut standing situé dans un quartier à proximité immédiate du coeur de Caudéran, quartier réputé pour son cadre de vie, ces commerces, ces différents services, ces parcs, ces équipements sportifs et ces transports en commun qui desservent directement le centre historique de Bordeaux.
Grâce à ces trois expositions, vous bénéficierez d'une lumière naturelle abondante tout au long de la journée. La vue sur la ville offre un panorama urbain élégant, parfait pour se détendre après une journée bien remplie.
Cet appartement neuf se distingue par son grand standing, ses finitions luxueuses (parquet massif, climatisation, volets électriques, Baies en aluminum...) et pour parfaire le tout son rooftop privatif pouvant accueillir votre jacuzzi et vos futures soirées.
Cet appartement est une véritable invitation à la sérénité et au confort. Imaginez-vous profiter de moments de détente sur votre terrasse, entouré de votre famille, tout en admirant la vue sur la ville.
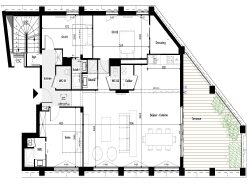
L'appartement se compose d'un vaste séjour spacieux de 57 m² ouvert sur une première terrasse de 29 m². Vous pourrez profiter de 3 chambres confortables, chacune avec sa salle d'eau et de 2 WC indépendants, garantissant ainsi intimité et confort pour tous les membres de la famille.
Deux places de parking sécurisées complètent ce bien
Pour plus d'informations ou pour organiser une visite, contactez-nous.
UN CADRE D'EXCEPTION DANS UN BIEN DE GRAND STANDING
Honoraires à la charge du vendeur. Dans une copropriété de 18 lots. Quote-part moyenne du budget prévisionnel 1 800 /an. Aucune procédure n'est en cours. Classe énergie C, Classe climat C Montant moyen estimé des dépenses annuelles d'énergie pour un usage standard, établi à partir des prix de l'énergie de l'année 2024 : entre 746.00 et 1009.00 . Les informations sur les risques auxquels ce bien est exposé sont disponibles sur le site Géorisques : georisques.gouv.fr.
Votre conseiller RH Patrimoine : Gérant associé - Philippe HERVE Carte T CPI 3301 2018 000 029 220
124 m²
9 597 €
57 m²
4
3
3
2 (séparés)
6 sur 6
2025
Oui
2
Oui
2
Oui
Oui
Oui (18 lots)
Consommations énergétiques
Logement économe
62
Logement énergivore (kWhEP/m2/an)
Émissions de gaz à effet de serre
Faible émission de GES
11
Forte émission de GES(kgeqCO2/m2/an)
Contact Philippe HERVE
Contacter gratuitement à l'aide du formulaire ci-dessous.