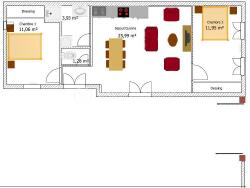
Situé au c?ur de Montendre, 2 maisons de plain-pied de 55 m² chacune entièrement rénovées.
Elles ont bénéficié de l'isolation par l'extérieur et ont chacune une pompe à chaleur.
Chaque maison a son propre jardin, 2 chambres, un salon séjour, une cuisine et une salle d'eau.
les plus de ces maisons :
locataires en place moyennant 1413€50 hors charges par mois
pas de travaux à effectuer
bonne situation et places de parking
Cette annonce référence 308035 vous est présentée par votre agent commercial BSK Immobilier ANNE-SOPHIE SALLAT DELUME (EI) immatriculé au RSAC de CHARTRES (28000) sous le numéro 94810523400017.
Prix du bien : 230 000,00 €
Les honoraires d'agence sont à la charge du vendeur.
A propos des performances énergétiques :
Date de réalisation du diagnostic énergétique : 06/03/2025
Score DPE : 202 kWhEP/m²/an
Score GES : 6 kgepCO2/m²/an
Montant estimé des dépenses annuelles d'énergie pour un usage standard : entre 820.00 € et 1170.00 € par an. Prix moyens des énergies indexés sur l'année 2023 (abonnements compris).
Les informations sur les risques auxquels ce bien est exposé sont disponibles sur le site Géorisques : www.georisques.gouv.fr
110 m²
2 091 €
316 m²
7
4
1
1980
Consommations énergétiques
Logement économe
202
Logement énergivore (kWhEP/m2/an)
Émissions de gaz à effet de serre
Faible émission de GES
6
Forte émission de GES(kgeqCO2/m2/an)
Contact SALLAT DELUME ANNE-SOPHIE
Contacter gratuitement à l'aide du formulaire ci-dessous.