DINARD - Appartement 3 pièces - 64.27m² - terrasse de 9.56m² - jardin de 74.64m² - stationnement
Dinard 35800
0
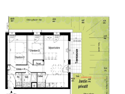
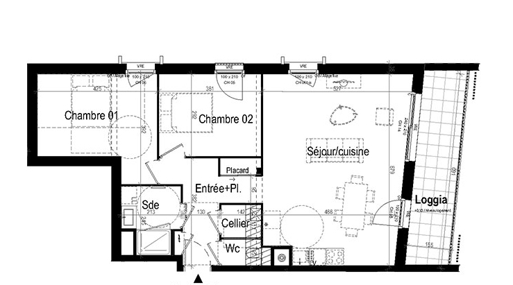
DINARD - Appartement 3 pièces - 64.27m² - terrasse de 9.56m² - jardin de 74.64m² - stationnement en sous-sol sécurisé avec local vélo - Frais de notaire offerts Dans une résidence élégante, à proximité de la plage à pied, à Dinard - station balnéaire prisée - non loin des commerces, commodités, plages, activités nautiques, du GR34 et de la Promenade au Clair de Lune, situé au rez-de-chaussée, appartement 3 pièces de 64.27m² comprenant : une entrée avec placards, séjour salon avec cuisine ouverte, accès à une terrasse de 9.56m² et un jardin de 74.64m², deux chambres, une salle d'eau, wc, cellier. Chauffage gaz. Accès sécurisé par badge et visiophone. Stationnement en sous-sol sécurisé avec local vélo. Que ce soit pour habiter toute l'année, un pied à terre saisonnier ou un investissement locatif. Prix promoteur - frais de notaire offerts - Les informations sur les risques auxquels ce bien est exposé sont disponibles sur le site Géorisques : www.georisques.gouv.fr. Photos non contractuelles - Suggestions d'aménagements Copropriété de 44 lots - dont 44 lots habitation. (Pas de procédure en cours). Charges annuelles : 921 euros.