DINARD - Appartement 3 pièces Ouest - 68.94m² - terrasse de 8.15m² - jardin de 40.57m² - garage
Dinard 35800
0
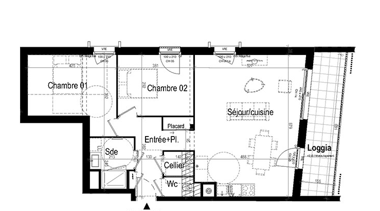
DINARD - Appartement 3 pièces Ouest - 68.94m² - terrasse de 8.15m² - jardin de 40.57m² - garage - frais de notaire offerts Dans la prestigieuse station balnéaire de Dinard, à quelques pas de la plage et à proximité des commerces, commodités et lieux emblématiques tels que le GR34 ou la Promenade au Clair de Lune, découvrez ce charmant appartement 3 pièces de 68,94 m² situé au rez-de-chaussée d'une élégante résidence. Ce bien comprend une entrée avec placards, un lumineux séjour-salon avec cuisine aménagée ouverte, donnant accès à une terrasse de 8,15 m² et à un jardin privatif de 40,57 m². L'espace nuit se compose de deux chambres, d'une salle d'eau et d'un WC indépendant. Un cellier, un chauffage au gaz, ainsi qu'un accès sécurisé par badge et visiophone viennent compléter les prestations. Un garage en sous-sol sécurisé est également inclus. Idéal pour une résidence principale, un pied-à-terre ou un investissement locatif. Prix promoteur. Les informations sur les risques auxquels ce bien est exposé sont disponibles sur le site Géorisques : www.georisques.gouv.fr. Photos non contractuelles - Suggestions d'aménagements. Copropriété de 44 lots - dont 44 lots habitation. (Pas de procédure en cours). Charges annuelles : 992 euros.