Dinard - Duplex T4 de 88 m2 orienté Sud-Ouest. 15mn à pied d
Dinard 35800
0
Honoraires à la charge de l'acquéreur (Prix hors honoraires : 475000 euros).
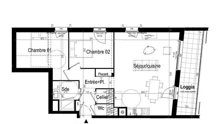
Situé dans la station balnéaire de Dinard, REGM Côte d'Emeraude Sophie Bouquerel, Tel : 0607900011 vous propose ce duplex neuf, situé au calme dans une petite copropriété à 15 mn à pied de la plage du Prieuré et des commodités. D'une superficie de 88.63 m2 habitable et de 108.62m2 de surface au sol, le premier niveau du bien, comprend une entrée, une chambre avec salle de bain privative et des toilettes séparées et une pièce de vie de 47m2 avec cuisine, orientée Sud-Ouest, prolongée par un balcon de 11 m2 offrant une agréable vue sur un jardin arboré pour profiter des couchers de soleil. À l'étage : une vaste chambre de 18 m2 avec dressing, une autre de 14 m2 avec salle de bain et WC, ainsi qu'une mezzanine de plus de 5 m2, idéale pour y aménager un espace bureau. A l'extérieur : une place de parking privative avec branchement pour véhicule électrique et un cellier/local vélo individuel sécurisé de 8,45 m2. Etude de potentiel locatif sur demande. Une belle opportunité préparer sereinement votre futur projet immobilier à Dinard. - Appartement livré et disponible de suite -. - Annonce rédigée et publiée par un Agent Mandataire -
Duplex
88.63 m²
5 596 €
11 m²
4
3
2
2
1 sur 2
4.42 %
Sud
Ouest
1
1
Oui
Contact BOUQUEREL Sophie - Agent Commercial
Contacter gratuitement à l'aide du formulaire ci-dessous.