DINARD Jolie maison dinardaise en pierre, jardin sud, 700 m plage
Dinard 35800
0
Honoraires à la charge de l'acquéreur (Prix hors honoraires : 450000 euros).
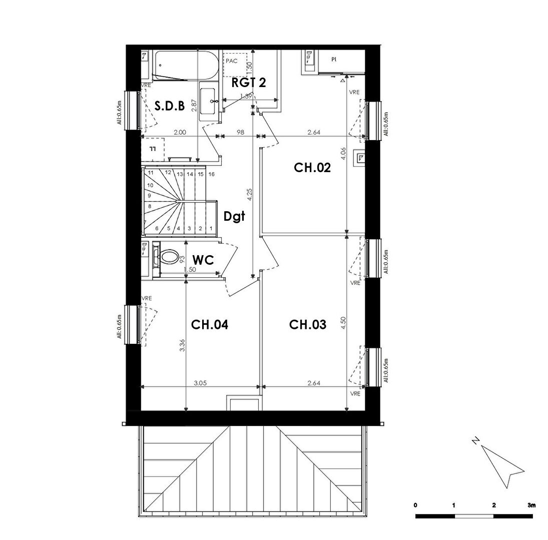
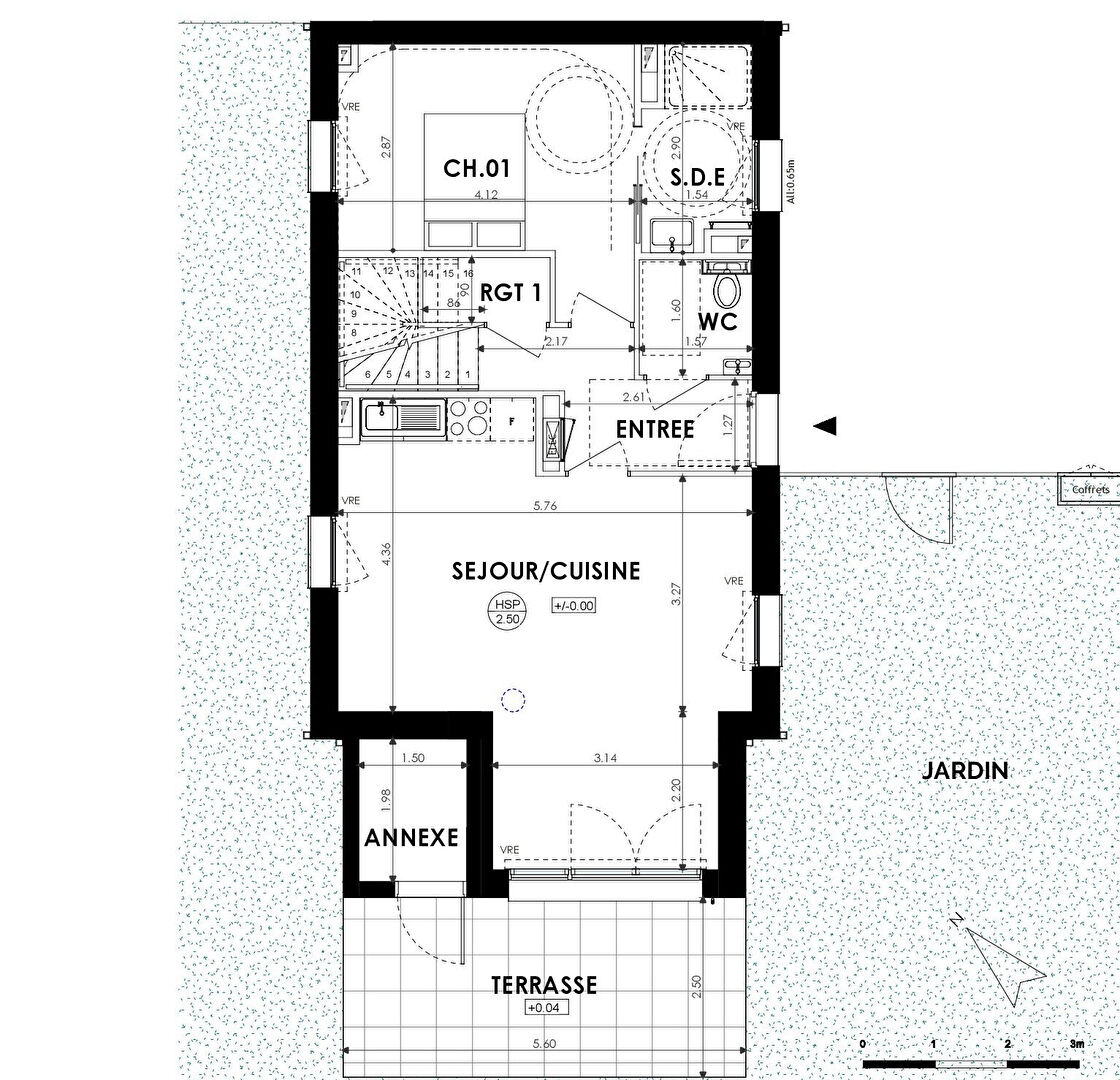
Réf. : H-16989 PRIX : 471 600 euros FAI* DINARD PRIEURE SOUS COMPROMIS Dans une petite rue calme de Dinard, charmante maison dinardaise en pierre implantée sur un terrain clos de 214 m² exposé plein sud. Idéalement située à seulement 700 m de la plage et 800 m de son célèbre marché, elle offre un cadre de vie très agréable, proche des commodités et du littoral. ?? Au RDC : une entrée, une cuisine aménagée ouverte sur un salon cosy agrémenté d'une cheminée, prolongé par une véranda très lumineuse offrant une belle liaison intérieur/extérieur. A l'étage : trois belles chambres (dont une avec petite salle d'eau privative), une salle de bains, et un WC. Un grand cellier, pratique pour le retour de plage, dispose lui aussi d'une salle d'eau et d'un WC. Une cave complète ce bien. Le jardin, ensoleillé et clos, constitue un réel atout pour les beaux jours. ?? Points forts : emplacement à proximité de la plage et du marché, charme de la pierre, véranda lumineuse, chauffage par cheminée, cellier / salle d'eau « retour de plage ». Bien idéal pour résidence secondaire ou famille en quête d'un pied à terre à Dinard Rafraîchissement à prévoir Les informations sur les risques auxquels ce bien est exposé sont disponibles sur le site Géorisques : www. georisques. gouv. fr Diagnostic réalisé le 17/09/2025 - classe énergie E. Montant estimé des dépenses annuelles d'énergie pour un usage standard : entre 2390 et 3290 euros par an. Prix moyens des énergies indexés sur l'année 2021 2022 2023 (abonnements compris). *Le prix indiqué comprend les honoraires à la charge de l'acheteur :4.8% TTC du prix du bien hors honoraires Prix hors honoraires : 450 000 euros (4.80 % honoraires TTC à la charge de l'acquéreur.)