DPT VAR - GONFARON - VILLA 5 PIECES 98 M² + GARAGE + PISCINE
Gonfaron 83590
0
GONFARON - Village provençal situé au pied du massif des Maures -
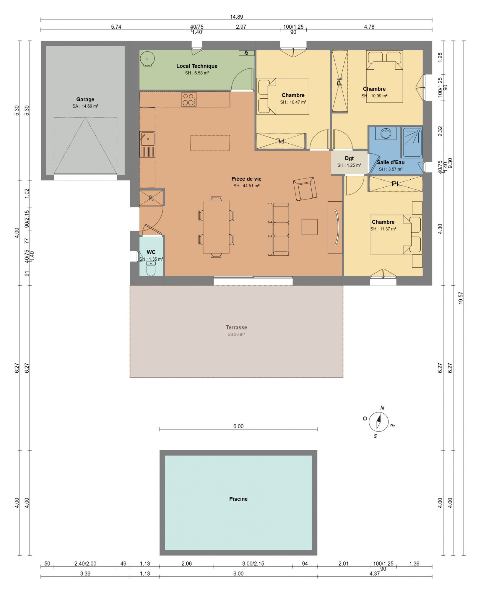
Dans un secteur calme et résidentiel, cette villa de famille de 98 m2 a été construite en 2000 sur une parcelle de 800 m2.
Toutes les pièces bénéficient d'une orientation Sud.
En rez de jardin, vous découvrirez une très belle pièce de vie, une cuisine indépendante aménagée et équipée, une chambre, une buanderie, un rangement sous escalier et un WC.
L'étage est composé de 2 chambres avec placards, d'une salle d'eau et d'un WC indépendant.
Un grand garage et un cellier avec accès direct à l'habitation viennent compléter ce bien.
Le jardin est clos et arboré. Il possède une très belle piscine située au calme, à l'abri des regards.
Les + : huisseries PVC et volets alu neufs, climatisation, forage (en plus du réseau d'eau de la ville), adoucisseur.
Notre avis : une villa très lumineuse où il fait bon vivre au quotidien.
Cette annonce référence 310298 vous est présentée par votre agent commercial BSK Immobilier CATHERINE BILLAUD (EI) immatriculé au RSAC de TOULON (83000) sous le numéro 88091572300014.
Prix du bien : 349 000,00 €
Les honoraires d'agence sont à la charge du vendeur.
A propos des performances énergétiques :
Date de réalisation du diagnostic énergétique : 23/09/2024
Score DPE : 184 kWhEP/m²/an
Score GES : 6 kgepCO2/m²/an
Montant estimé des dépenses annuelles d'énergie pour un usage standard : entre 1504.00 € et 2036.00 € par an. Prix moyens des énergies indexés sur l'année 2021 (abonnements compris).
Les informations sur les risques auxquels ce bien est exposé sont disponibles sur le site Géorisques : www.georisques.gouv.fr
98 m²
3 561 €
801 m²
5
3
1
2
2000
Sud
Consommations énergétiques
Logement économe
184
Logement énergivore (kWhEP/m2/an)
Émissions de gaz à effet de serre
Faible émission de GES
6
Forte émission de GES(kgeqCO2/m2/an)
Contact BILLAUD CATHERINE
Contacter gratuitement à l'aide du formulaire ci-dessous.