PROGRAMME NEUF A CEBAZAT situé au Boulvard Antoine de Saint-Exupéry du studio au 4 pièces. Cette résidence, composée de deux bâtiments de 2 étages avec attique, chacun bénéficiant d'un espace extérieur privatif (jardin, terrasse ou balcon) et d'un stationnement avec prise de recharge pour voiture électrique ou d'une place extérieure. La résidence Alchimie bénéficie d'un emplacement idéal à Cébazat permettant de profiter d'un jardin commun vivant et gourmand conçu avec un paysagiste en coeur d'îlot. L'occasion de se rencontrer, se détendre et apercevoir la biodiversité qu'offre la nature ! Egalement, de vous balader dans les espaces naturels à proximité et de rejoindre la Place de Jaude en transports en commun ou en voiture. N'hésitez pas à contacter notre agence pour en savoir plus sur cette opportunité exceptionnelle au coeur de Cébazat. Pour toutes informations complémentaires, prenez contact avec nous ! LIVRAISON 1ER TRIMESTRE 2027 - NORME RE2020
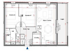
64.75 m²
3 046 €
12 m²
24 m²
3
2
1
1
1 sur 2
Est
Nord
1 (12 m²)
Oui
1
Oui
Oui
Contact CHAUVEL Catherine
Contacter gratuitement à l'aide du formulaire ci-dessous.