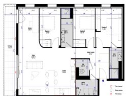
Situé très proche de Bordeaux Centre tout en étant proche de la Garonne, venez découvrir cette localisation stratégique. Dans cette copropriété à taille humaine de seulement 23 lots, un magnifique appartement de 93m2 baigné de lumière grâce à ses multiples ouvertures y est disponible.
Il se compose d'une grande pièce de vie avec cuisine et coin bureau de 38m2 donnant accès directement à la terrasse sans vis à vis et avec vue dégagée. Côté nuit, trois chambres dont une avec salle d'eau privative, une salle d'eau double vasque, un cellier ainsi qu'un WC.
Sur le toit de l'immeuble, un jardin commun à la copropriété vous permettra de savourer une vue imprenable sur Bordeaux et de passer des moments de détente.
Une place de parking couverte et sécurisée complète ce bien.
- Aucun travaux à prévoir - Ascenseur - Frais de Notaires Réduits - Garanties - RT 2012 - Disponible - ...
VOTRE NOUVELLE VIE DE FAMILLE A DEUX PAS DU TRAM
Honoraires à la charge du vendeur. Dans une copropriété de 23 lots. Aucune procédure n'est en cours. DPE en cours. Les informations sur les risques auxquels ce bien est exposé sont disponibles sur le site Géorisques : georisques.gouv.fr.