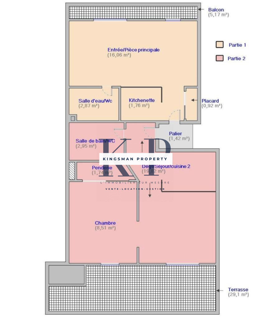
Découvrez cet appartement agréable et lumineux, situé au premier étage d'un bâtiment bien entretenu, offrant une surface de 36 m² (loi carrez) et 70m² au sol.
Ce bien dispose d'un espace de vie fonctionnel comprenant une cuisine ouverte, une salle à manger et deux chambres.
Vous profiterez également d'équipements récents tels que des volets roulants électriques.
Le secteur offre un cadre pratique avec plusieurs espaces verts accessibles à pied. Les commerces et services se trouvent à proximité, rendant la vie locale simple et agréable. Le quartier bénéficie d'une atmosphère calme tout en restant proche des zones plus dynamiques de Corbeil-Essonnes directement sur la nationale 7. Un emplacement fonctionnel, idéal pour un quotidien confortable.
Caractéristiques techniques
- Taxe foncière : 833 €
- Charges de copropriété : 70 €
- DPE : F
- Type de chauffage : Électrique individuel
Les informations sur les risques auxquels ce bien est exposé sont disponibles sur le site Géorisques : (http://www.georisques.gouv.fr/)
Intéressés ? Contactez Zefir pour visiter ce bien.