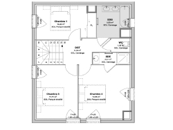
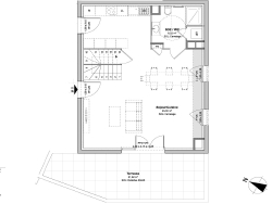
A Vénissieux, idéalement située face au parc Clos Layat, et à deux pas de toutes commodités, je vous propose de visiter ce très beau Duplex de 102m² aux dernières normes comprenant : Au premier niveau, une cuisine, un séjour donnant sur une terrasse de 21,82m² , une salle d'eau avec wc. A l'étage, trois chambres, une salle de bain, une salle d'eau et un WC. Isolation phonique et thermique renforcés, faibles charges. L'appartement est vendu avec un garage en sous sol Bâtiment basse consommation Prix de vente en TVA Réduite, soumis à des plafonds de revenus, voir conditions en agence Merci de contacter votre conseiller Grégory pour plus d'informations Visuel non contractuel. Copropriété de 56 lots. Charges annuelles : 1200 euros.