DUPLEX 82 m2 Centre-ville RIOM Idéal investisseur ou rés
Riom 63200
0
Honoraires à la charge du vendeur.
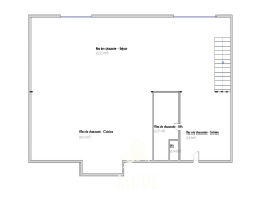
DUPLEX 82 m2 Centre-ville RIOM Idéal investisseur ou résidence principale Situé au 2 Place Eugène Rouher, au coeur de Riom, ce duplex de 82 m2 prend place dans une ancienne manufacture des tabacs réhabilitée en 2005, bâtiment emblématique alliant cachet et authenticité. À seulement quelques minutes à pied du centre-ville et de la gare, il bénéficie d'un emplacement recherché. Appartement en duplex comprenant : - Séjour spacieux de plus de 32 m2 - Cuisine ouverte aménagée - 2 grandes chambres (14 et 15m2) - Salle de bain + salle d'eau Jusqu'à présent loué 720 EUR HC, le bien sera libre en avril 2026 : idéal pour habiter ou investir (location meublée / colocation possible). Les + : - Bâtiment de caractère - 2 points d'eau (Salle de bain + Salle d'eau)+ 2 WC - Chaudière récente (2024) - Emplacement central - Stationnement aisé dans la rue - Possibilité d'acquisition ou de location de places de parking à proximité
Informations pratiques : - Année de construction : Avant 1948 - Classe énergétique : D Coûts estimés entre 1 820 EUR et 2 510 EUR par an pour une utilisation standard (chauffage, eau chaude, éclairage, auxiliaires). - Quartier : Centre-ville de Riom Bien soumis au statut de copropriété : - Charges annuelles de copropriété : 1 605 EUR soit 134 EUR/mois (comprenant charges courantes, ascenseur, espaces verts et eau) - Taxe foncière : 1060EUR - Nombre de lots : 166 - Aucune procédure en cours Honoraires agence à la charge du vendeur Pour plus d'informations sur les risques auxquels ce bien est exposé, consultez le site Géorisques : www.georisques.gouv.fr Pour toute information ou visite, Véronique Hutin Négociatrice & Associée JAUDE Immobilier 06 86 17 11 33 -v.hutin@jaudeimmobilier.fr
84.48 m²
1 598 €
32 m²
3
2
1
1
2
134 € / mois
1870
Oui (330 lots)
Consommations énergétiques
Logement économe
234
Logement énergivore (kWhEP/m2/an)
Émissions de gaz à effet de serre
Faible émission de GES
49
Forte émission de GES(kgeqCO2/m2/an)
Contact HUTIN Véronique
Contacter gratuitement à l'aide du formulaire ci-dessous.