Duplex 86m2 - Boulogne Nord - Parchamp - Albert Kahn
Boulogne-Billancourt 92100
0
Honoraires à la charge du vendeur.
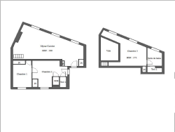
Ravissant duplex de 86 m2, au sein d'un bel immeuble de 1919 rénové, à deux pas du parc Rothschild, du marché Escudier et des écoles réputées. Offrant un charme intemporel et une ambiance chaleureuse. Situé aux 2ème et 3ème étages, l'appartement se compose d'une entrée, d'un vaste séjour cathédrale avec cheminée, d'une cuisine américaine, de deux chambres d'un WC et d'une salle de douche. À l'étage supérieur, vous trouverez une spacieuse chambre surplombant le séjour, une salle de bains avec WC. Lumineux, et traversant, il offre des vues dégagées sur les hôtels particuliers environnants et la colline de Saint Cloud. Deux grandes caves complètent ce bien, avec la possibilité de louer un box dans la cour intérieure. À proximité du métro Boulogne Jean-Jaurès. Des optimisations d'aménagement sont envisageables pour personnaliser selon vos besoins. À saisir rapidement !Les informations sur les risques auxquels ce bien est exposésont disponibles sur le site Géorisques : www.georisques.gouv.fr Cette annonce vous est proposée par LEROUX Gregoriane - EI - NoRSAC: 805 281 136, Enregistré à Greffe du tribunal de commerce de NANTERRE - Annonce rédigée et publiée par un Agent Mandataire -
Duplex
86 m²
9 884 €
34 m²
4
3
1
1
2
2 sur 4
220 € / mois
1919
Est
Ouest
Oui
Oui
Consommations énergétiques
Logement économe
455
Logement énergivore (kWhEP/m2/an)
Émissions de gaz à effet de serre
Faible émission de GES
15
Forte émission de GES(kgeqCO2/m2/an)
Contact Grégoriane LEROUX
Contacter gratuitement à l'aide du formulaire ci-dessous.