Situé au deuxième et dernier étage d'une petite copropriété à MOUANS-SARTOUX, ce duplex de plus de 100 m² (92,23 m² loi Carrez) offre trois chambres et une terrasse sur le toit de 33,56 m² avec vue à 360°. Idéal pour les bricoleurs, ce bien à rénover permet de personnaliser chaque espace selon vos envies.
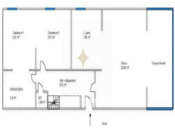
Agencement actuel : Niveau 1 : séjour avec cuisine ouverte, véranda, suite parentale avec dressing et salle de bains, WC. Niveau 2 : deux chambres, salle de douche, accès à la terrasse. Parking et cave inclus.
Un devis de travaux et visite virtuelle disponibles sur demande.
DPE : D
Menuiseries bois double vitrage.
Chaudière individuelle au gaz.
VMC.
Infos copropriété : Les charges de copropriété s'élèvent à 130 euros / mois. Aucune procédure en cours.
Honoraires à la charge du vendeur. Dans une copropriété de 47 lots. Aucune procédure n'est en cours. Classe énergie D, Classe climat D Montant moyen estimé des dépenses annuelles d'énergie pour un usage standard, établi à partir des prix de l'énergie de l'année 2021 : entre 1342.00 et 1816.00 . Les informations sur les risques auxquels ce bien est exposé sont disponibles sur le site Géorisques : georisques.gouv.fr.