Quartier Hotel de ville à Montpellier, sur les rives du Lez, résidence architecturale de 7 e?tages alliant une grande modernite? tout en faisant e?cho aux paysages des Causses. Construite sur pilotis, ses façades en pierre naturelle végétalisées et son coeur paysager offrent un e?quilibre parfait entre urbanite? et ve?ge?tation, ainsi qu'une protection naturelle contre la chaleur. La conception des parties communes a e?te? imagine?e avec soin et favorise les e?changes : oeuvres d'art, salle commune donnant sur le parc des berges du Lez est a? la disposition des résidents, service de conciergerie.
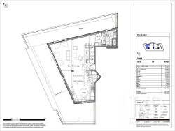
Je vous propose un bel appartement T4, traversant, de 142m² en duplex. Le premier niveau est occupé par un séjour de 44m², une cuisine semi séparée, un cellier attenant à la cuisine et une salle d'eau avec WC. Dans le séjour, un escalier conduit à l'étage composé de 3 chambres, d'une salle de bain et d'un espace mezzanine ouvert sur le séjour. Toutes les chambres disposent d'un placard, la chambre parentale inclut une salle d'eau privative. Le vide sur séjour confère à ce dernier une impression de volume grace à sa grande hauteur sous plafond. La triple exposition et les grandes ouvertures sur la terrasse apportent beaucoup de luminosité, notamment un impressionnant mur rideau sur sa façade ouest. L'espace extérieur totalise 110m². Vous disposez de 3 garages privatifs en sous-sol. Belles prestations : carrelage de très grande dimension, chauffage gainable split, fermeture des occultants centralisée.. Tous les commerces ne?cessaires au quotidien sont a? proximite? : supe?rettes, boulangerie, pharmacies, cafe?s, restaurants... Le centre historique et la gare St Roch sont à 10 minutes. L'ae?roport a? 6 km. Les lignes 1 et 4 du tramway passent au pied de la re?sidence. une adresse prestigieuse à Montpellier. Merci de me contacter pour plus d'information. Carole Ducoin-EI, votre consultante partenaire RSAC de Montpellier N° 832 505 465.
Honoraires à la charge du vendeur. Dans une copropriété de 77 lots. Quote-part moyenne du budget prévisionnel 4 000 /an. Aucune procédure n'est en cours. DPE vierge. Les informations sur les risques auxquels ce bien est exposé sont disponibles sur le site Géorisques : georisques.gouv.fr.