Duplex dans une maison bourgeoise avec terrasse et jardin privatif
Le Pont-de-Claix 38800
0
Honoraires à la charge du vendeur.
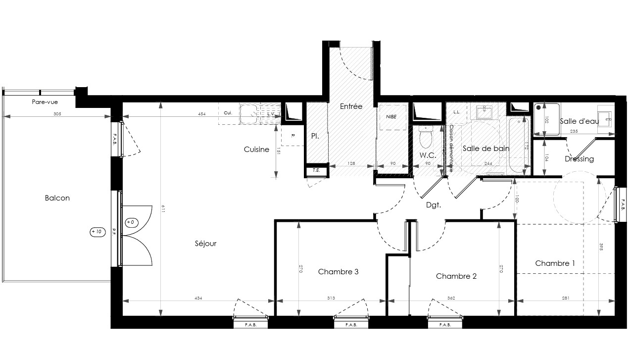
Ce duplex neuf, livrable en mai 2025, s'inscrit dans une maison de maitre totalement rénovée, située au coeur d'un ilot de verdure proche du centre de Pont-de-Claix. Au sein d'une résidence fermée, il est situé à proximité de toutes les commodités et de l'arrêt du tramway. D'une superficie de 89 m² habitables, au premier et dernier étage de ce manoir, il est traversant Est/Ouest et bénéficie ainsi d'une belle luminosité grâce à de grandes baies vitrées. Le niveau inférieur de ce duplex, sous hauteur de plafond de 3 m est réservé principalement à la pièce de vie avec un séjour-cuisine de 35 m² ouvert sur une confortable terrasse. Des toilettes complètent ce niveau. L'étage sous combles est quand à lui destiné au coin nuit avec 3 chambres, un WC et une salle de bains. Un jardin privatif de 97 m² est affecté à ce logement pour profiter soit de moments conviviaux en plein air et (ou) d'un potager . Enfin une cave en sous-sol de la maison d'une superficie de 18 m² offrira un volume confortable de stockage. Les prestations sont de qualité : chauffage par pompe à chaleur air-eau , DPE B ou C, volets roulants électriques, parquets dans toutes les pièces sèches ... Un garage fermé et ou une place de stationnement extérieure privative sont proposés séparément (respectivement 15 000 euros et 5 000 euros) Les frais de notaire sont réduits (vente en VEFA) 2 autres appartements T4 sont à la vente dans cette superbe bâtisse. La commune de Pont de Claix se métamorphose et ce duplex est un lieu des plus attrayants pour y résider. Taxe foncière : NC CLASSE ENERGIE : NC/ CLASSE CLIMAT : . Montant moyen estimé des dépenses annuelles d'énergie pour un usage standard, établi à partir des prix de l'énergie de l'année : entre euros et euros Les informations sur les risques auxquels ce bien est exposé sont disponibles sur le site Géorisques : www.georisques.gouv.fr Contact : Xavier MADORE - 06 87 01 22 45 Copropriété de 3 lots - dont 3 lots habitation. Charges annuelles : 1932 euros.