Duplex dernier étage expo sud ouest, double terrasses+balcon
Saint-Malo 35400
0
Honoraires à la charge du vendeur.
L'agence 'MON BIEN A LA MER', spécialiste de l'immobilier neuf sur les côtes Bretonnes, vous présente :
Résidence livrée, visitable, frais de notaire réduits. Emplacement central : A pied : 8 min gare, 15 min plage des Bas Sablons/St Servan, 18 min Sillon, 16 min Marché de Rocabey, 5 min Centre Hospitalier.
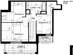
Beau T4 Duplex aux 5è et 6è (dernier) étage comprenant :
- Sur le premier niveau : séjour 33,73m2+entrée 6,92m2, placards, wc séparés, cellier 4,95m2, expo sud et ouest, terrasse 11,3m2
- Deuxième niveau : 3 chambres de 14,5-11-12,4m2 au sol, terrasse 8,02m2, balcon 2,62m2, salle de bains double vasque 6,08m2.
- Chauffage électrique, parking double sous sol inclus.
Nous Consulter
Honoraires à la charge du vendeur. Non soumis au DPE. Les informations sur les risques auxquels ce bien est exposé sont disponibles sur le site Géorisques : georisques.gouv.fr.
Votre conseiller MON BIEN A LA MER : Gérant - .fr MON BIEN A LA MER Carte T CPI 2201 2018 000 025 040 RCP ACM IARD B1 7025278
Duplex
89.42 m²
5 759 €
3 m²
34 m²
4
3
1
2 (séparés)
6 sur 6
Sud
Ouest
1 (3 m²)
Oui
2
2
Consommations énergétiques
Logement économe
64
Logement énergivore (kWhEP/m2/an)
Émissions de gaz à effet de serre
Faible émission de GES
2
Forte émission de GES(kgeqCO2/m2/an)
Contact mon bien à la mer
Contacter gratuitement à l'aide du formulaire ci-dessous.