Duplex lumineux avec terrasse privative ? Rennes hyper-centre
Rennes 35000
0
Rennes (35) ? Quartier des Lices / Rue de Dinan
Vivre les Lices à pied tout en profitant d'un extérieur au calme absolu.
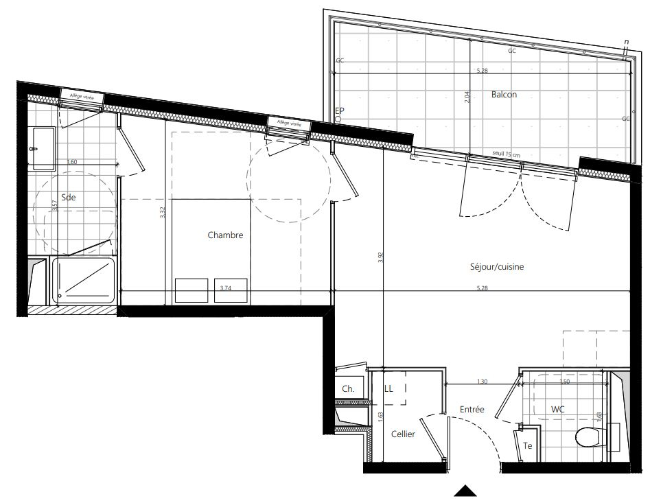
À deux pas du marché des Lices, découvrez ce duplex de charme de 45,50 m² (loi Carrez), idéalement situé en plein c?ur de Rennes, dans une petite copropriété calme et bien entretenue.
Un cocon avec terrasse au calme
La pièce de vie, baignée de lumière, s'ouvre directement sur une terrasse privative sans vis-à-vis, un atout rare en centre-ville.
Cet espace extérieur de plain-pied invite à profiter pleinement de vos petits déjeuners ou de vos soirées d'été, à l'abri de l'agitation urbaine.
Un agencement fonctionnel
À l'étage, une chambre spacieuse et une seconde pièce modulable (bureau, dressing ou coin nuit) permettent de concilier confort et praticité au quotidien.
Un agencement intelligent qui optimise chaque mètre carré.
Prestations et confort :
Surface habitable : 45,50 m² (Carrez)
Terrasse privative exposée Ouest
Chauffage individuel électrique
Menuiseries double vitrage
Petite copropriété de 10 lots ? faibles charges
DPE : D
Charges et taxe foncière faibles
Local vélos
Proximité immédiate : métro A (Sainte-Anne / Anatole France), commerces, restaurants, marché des Lices, transports.
Idéal pour :
Jeune couple actif cherchant à vivre Rennes à pied
Investisseur locatif meublé (forte demande sur le secteur)
Pied-à-terre rennais avec extérieur
Les + :
Terrasse privative au calme
Emplacement recherché
Petite copropriété
Idéal premier achat ou investissement
À 5 min à pied du métro et du marché des Lices
Bien soumis au statut de la copropriété, 10 logements, procédure en cours : aucune, 10 lots, Charges budget prévisionnel annuel 300 €.
Bien présenté par Agences de France par délégation.
Agences de France ? SIREN : 899413603 ? Titulaire de la carte T : 29012021000000009 non habilité à percevoir des fonds
Les informations sur les risques auxquels ce bien est exposé sont disponibles sur le site Géorisques : www. georisques. gouv. fr
45 m²
5 978 €
3
1
1
1
Américaine
Oui
Oui
Consommations énergétiques
Logement économe
230
Logement énergivore (kWhEP/m2/an)
Émissions de gaz à effet de serre
Faible émission de GES
7
Forte émission de GES(kgeqCO2/m2/an)
Contact Eric MARGELY
Contacter gratuitement à l'aide du formulaire ci-dessous.