Duplex lumineux de 130 m² avec terrasse 6e arrondissement, Marseille 995 000
Marseille 13006
0
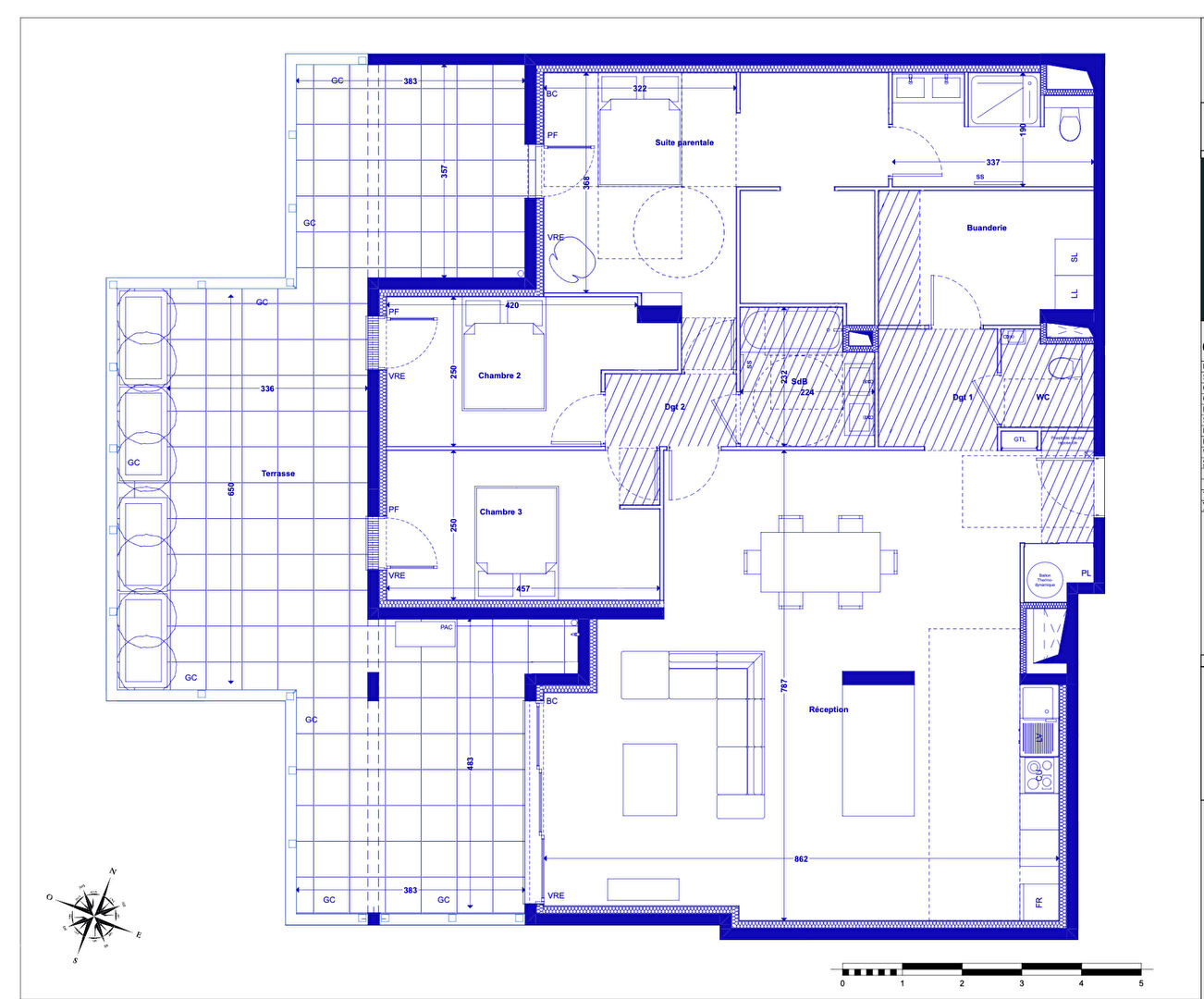
Livré fin 2025, ce duplex neuf de 130 m² allie modernité, confort et praticité au coeur du très recherché 6e arrondissement. Idéal pour une famille active, il bénéficie de tous les avantages du neuf : frais de notaire réduits, matériaux économes en énergie, garanties décennales, tout en étant prêt à accueillir ses futurs habitants dès la fin de l'année.
Points forts :
Vaste séjour avec cuisine ouverte donnant sur une belle terrasse exposée sur cour intérieure,
5 chambres, dont 2 de plain-pied, parfaites pour enfants et bureaux à domicile,
Salle de bain, salle d'eau et 3 WC pour un confort optimal,
Lumineux, calme et sécurisé, avec accès par ascenseur aux dernières normes,
Emplacement idéal : écoles, commerces et transports à pied.
Un duplex rare qui conjugue modernité, espace et qualité de vie, dans un quartier central et prisé de Marseille.
Prix de vente : 995 000 euros (honoraires à la charge du vendeur)
Charges courantes « prévisionnelles » de 2808 euros.
Procédures diligentées contre le syndicat de copropriété : NON.
0613303875, c.guimond@proprietes-privees.com
Pour visiter et vous accompagner dans votre projet, contactez Caroline GUIMOND, au 0613303875 ou par courriel à c.guimond@proprietes-privees.com Selon l'article L.561.5 du Code Monétaire et Financier, pour l'organisation de la visite, la présentation d'une pièce d'identité vous sera demandée. Cette vente est garantie 12 mois. Cette annonce a été rédigée sous la responsabilité éditoriale de Caroline GUIMOND agissant en qualité de conseiller immobilier indépendant sous portage salarial auprès de la SAS PROPRIETES PRIVEES, au capital de 40 000 euros, ZAC LE CHÊNE FERRÉ - 44 ALLÉE DES CINQ CONTINENTS 44120 VERTOU; SIRET 487 624 777 00040, RCS Nantes. Carte professionnelle Transactions sur immeubles et fonds de commerce (T) et Gestion immobilière (G) n° CPI 4401 2016 000 010 388 délivrée par la CCI Nantes - Saint Nazaire. Compte séquestre n°30932508467 BPA SAINT-SEBASTIEN-SUR-LOIRE (44230) ; Garantie GALIAN - 89 rue de la Boétie, 75008 Paris - n°28137 J pour 2 000 000 euros pour T et 120 000 euros pour G. Assurance responsabilité civile professionnelle par MMA Entreprise n° de police 120.137.405
Mandat réf : 423355 - Le professionnel garantit et sécurise votre projet immobilier.
Copropriété de 64 lots - dont 64 lots habitation. ().
Charges annuelles : 1450 euros.
Caroline GUIMOND (EI) Agent Commercial - Numéro RSAC : TOULON 511 466 302 - .
Les informations sur les risques auxquels ce bien est exposé sont disponibles sur le site Géorisques : www. georisques. gouv. fr
129 m²
7 713 €
5
4
3 sur 3
2025
Oui
Contact Caroline GUIMOND
Contacter gratuitement à l'aide du formulaire ci-dessous.