Situé à Sciez sur Leman, la résidence vous offrira une situation de premier plan proche des commerces et écoles et transport.
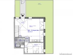
Je vous propose cet appartement T5, de 104 m² environ en rez de jardin, se composant d'une entrée donnant sur pièce de vie avec cuisine ouverte donnant sur jardin, une chambre donnant sur jardin, une salle d'eau avec wc . trois chambres et une salle de bains à l'étage. Cet appartement est vendu avec deux stationnements en sous-sol et une cave. Des prestations de standing, viennent compléter cet ensemble de qualité offrant un excellent niveau de confort moderne et d'isolation, ainsi que de faibles charges de copropriété.
Disponibilité au 4ème trimestre 2025
Autres configurations de distribution interne possibles, me contacter pour plus d'informations. Photos non contractuelles.
Pour visiter et vous accompagner dans votre projet, contactez Jérôme BLANDIN-SIKLI, au 0650851710 ou par courriel à j.blandinsikli@proprietes-privees.com
Selon l'article L.561.5 du Code Monétaire et Financier, pour l'organisation de la visite, la présentation d'une pièce d'identité vous sera demandée.
Cette présente annonce a été rédigée sous la responsabilité éditoriale de Jérôme BLANDIN-SIKLI agissant sous le statut d'agent commercial immatriculé au RSAC thonon les bains 483844122 auprès de la SAS PROPRIETES PRIVEES, au capital de 40 000 euros, ZAC LE CHÊNE FERRÉ - 44 ALLÉE DES CINQ CONTINENTS 44120 VERTOU; SIRET 487 624 777 00040, RCS Nantes. Carte professionnelle Transactions sur immeubles et fonds de commerce (T) et Gestion immobilière (G) n° CPI 4401 2016 000 010 388 délivrée par la CCI Nantes - Saint Nazaire. Compte séquestre n°30932508467 BPA SAINT-SEBASTIEN-SUR-LOIRE (44230) ; Garantie GALIAN - 89 rue de la Boétie, 75008 Paris - n°28137 J pour 2 000 000 euros pour T et 120 000 euros pour G. Assurance responsabilité civile professionnelle par MMA Entreprise n° de police 120.137.405
Mandat réf : 393051. - Le professionnel garantit et sécurise votre projet immobilier.
Copropriété de 371 lots - dont 100 lots habitation. ().
Charges annuelles : 1300 euros.
Jérôme BLANDIN-SIKLI (EI) Agent Commercial - Numéro RSAC : thonon les bains 483844122 - .
103 m²
4 597 €
32 m²
5
4
1
1
2
2025
Est
Nord
Oui
Oui
Contact Jérôme BLANDIN-SIKLI
Contacter gratuitement à l'aide du formulaire ci-dessous.