Située dans une rue calme à proximité de la barrière de Pessac, 4min en voiture de l'hôpital PELLEGRIN, 15 min à pieds, cette échoppe double de 83 m² environ sur un terrain de 212 m² bénéficie d'un emplacement idéal. Proche des transports en commun tels que bus et tramway, hôpitaux, cette propriété est également à proximité d'écoles, lycées, collèges, crèches, du centre-ville et de nombreux commerces, offrant ainsi un cadre de vie pratique et complet. L'environnement urbain offre un accès facile à toutes les commodités, et la présence de la fibre en fait un lieu moderne et connecté.
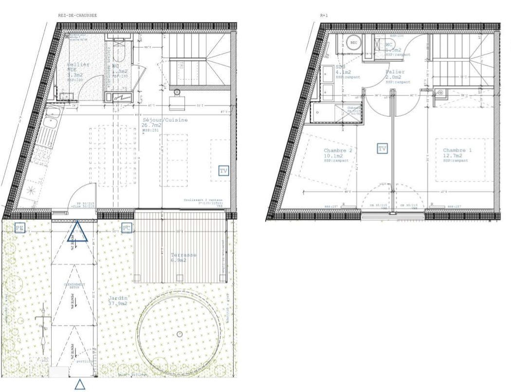
Cette échoppe double dispose de 6 pièces, comprenant un séjour lumineux, 2 cuisines fonctionnelles, 2 chambres confortables, un coin chaufferie, un cellier, 2 salles de bains, 2 toilettes, une dépendance, ainsi qu'une agréable terrasse de 25 m², jardin arboré et clos, abondamment ensoleillé
l'exposition procurant une luminosité permanente dans toutes les pièces de la maison
quartier calme et rassurant, plusieurs possibilités d'évolution de la propriété :
- construction d'une avancée sur l'arrière d'environ 40 m²
- surélévation, jardin piscinable, Isolation optimisée avec murs en pierre, doublés en brique avec ses caractéristiques de plain pied, cette maison offre un espace de vie pratique et agréable pour une famille ou un couple souhaitant profiter d'une résidence à la fois moderne et bien située.
Laissez - vous séduire par cette belle échoppe double et n'hésitez pas à me contacter pour organiser une visite.
Les informations sur les risques auxquels ce bien est exposé sont disponibles sur le site Géorisques : www.georisques.gouv.fr
Prix de vente honoraires d'agence inclus : 399 900 €
Prix de vente hors honoraires d'agence : 389 900 €
Honoraires charge acquéreur : 10 000 € soit 2,56 % TTC de la valeur du bien hors honoraires
Contactez votre consultant megAgence : Aghrib MEDDAHI, Tél. : 0667530755, E-mail : aghrib.meddahi@megagence.com - EI - Agent commercial immatriculé au RSAC de SAINTES sous le numéro 904 540 218
83 m²
4 818 €
212 m²
6
2
2
2
1948
Consommations énergétiques
Logement économe
185
Logement énergivore (kWhEP/m2/an)
Émissions de gaz à effet de serre
Faible émission de GES
9
Forte émission de GES(kgeqCO2/m2/an)
Contact Marc Lelogeais
Contacter gratuitement à l'aide du formulaire ci-dessous.