Les charges de location sont prévisionnelles mensuelles avec régularisation annuelle.
La part des honoraires pour la réalisation de létat des lieux de ce bien est de 208 euros.
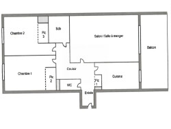
A louer - Appartement T3 à Angers de 69,18m2 - Quartier Pasteur
Disponible dès à présent.
Idéalement situé dans le quartier Pasteur, rue Eugène Claudius Petit, calme, recherché et proche du centre-ville, cet appartement de type 3 bénéficie d'un cadre de vie agréable, à deux pas des transports en commun (tramway, bus) et de toutes les commodités (commerces, écoles, etc.).
Le logement se compose d'une cuisine aménagée et équipée, d'une pièce de vie lumineuse ouvrant sur un balcon extérieur, de deux chambres, ainsi que d'une salle de bain avec toilettes séparées. L'appartement dispose également d'une place de parking.
Informations complémentaires :
L'immeuble est fibré Bail d'une durée d'un an, renouvelable tacitement. DPE : classe C Loyer : 1000 dont 50 de charges (charges de copropriété, ordures ménagères, eau froide). Modalité de récupération des charges locatives : Forfaitaires mensuelles Dépôt de garantie : 1900 Honoraires d'agence : 760,98 dont 207,54 pour l'était des lieux Date de réalisation du diagnostic énergétique : 11-06-2025
Pour plus de sécurité dans l'envoi de vos documents, nous collaborons avec notre partenaire Garantme. Après avoir postulé, vous recevrez un e-mail avec l'objet 'Charleos', vous invitant à compléter votre dossier locatif.
Intéressé(e) ? Contactez nous, nous serons ravis de vous faire découvrir ce bien !
Honoraires de 761 TTC à la charge du locataire comprenant 208 TTC pour l'état des lieux. Loyer de base 950 /mois. Provision sur charges 50 /mois, régularisation annuelle. Dépôt de garantie 1 900 . Classe énergie C, Classe climat A Montant moyen estimé des dépenses annuelles d'énergie pour un usage standard, établi à partir des prix de l'énergie de l'année 2021 : entre 830.00 et 1170.00 . Les informations sur les risques auxquels ce bien est exposé sont disponibles sur le site Géorisques : georisques.gouv.fr.
69.18 m²
3
2
1
1 (séparé)
1
761 %
50.00 € / mois
Oui
1992
1
1
Oui
Consommations énergétiques
Logement économe
147
Logement énergivore (kWhEP/m2/an)
Émissions de gaz à effet de serre
Faible émission de GES
4
Forte émission de GES(kgeqCO2/m2/an)
Contact Charleos
Contacter gratuitement à l'aide du formulaire ci-dessous.