Maison semi individuelle à Écurie (à 6 min d'Arras)
Venez découvrir cette charmante maison semi individuelle récente , idéalement située dans un secteur calme et recherché, à seulement quelques minutes d'Arras.
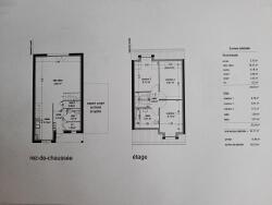
Au rez-de-chaussée :
Spacieuse pièce de vie lumineuse avec cuisine ouverte, idéale pour recevoir
Buanderie pratique
WC séparé
A l'étage :
3 chambres confortables
Salle de bains équipée d'une baignoire et d'un WC
Crèche et école primaire dans le village
Bus près de l'église pour rejoindre le collège et le lycée
A l'extérieur, vous profiterez d'un beau terrain de 364 m² orienté plein sud sans vis à vis, parfait pour les moments en famille, le jardinage ou la détente.
Un bien rare sur le secteur, à visiter sans tarder !
Prix: 249 000 euros frais d'agence à charge vendeur
Non soumis au DPE.
Pour visiter et vous accompagner dans votre projet, contactez Corinne DEFRANCE, au 0678664329 ou, par courriel à c.defrance@proprietes-privees.com.
Selon l'article L.561.5 du Code Monétaire et Financier, pour l'organisation de la visite, la présentation d'une pièce d'identité vous sera demandée.
Cette présente annonce a été rédigée sous la responsabilité éditoriale de Corinne DEFRANCE agissant sous le statut d'agent commercial immatriculé au RSAC Douai 822355244 auprès de SAS PROPRIETES PRIVEES, au capital de 44 920 euros, ZAC LE CHÊNE FERRÉ - 44 ALLÉE DES CINQ CONTINENTS 44120 VERTOU; SIRET 487 624 777 00040, RCS Nantes. Carte Professionnelle Transactions sur immeubles et fonds de commerce (T) et Gestion immobilière (G) n°CPI 4401 2016 000 010 388 délivrée par la CCI Nantes - Saint Nazaire. Compte séquestre n°30932508467 BPA SAINT-SEBASTIEN-SUR-LOIRE (44230). Garantie GALIAN-SMABTP - 89 rue de la Boétie, 75008 Paris - n°28137 J pour 2 000 000 euros pour T et 120 000 euros pour G. Assurance responsabilité civile professionnelle par GALIAN-SMABTP n° de police 28137.J
Mandat réf : 429 083. - Le professionnel garantit et sécurise votre projet immobilier.
Corinne DEFRANCE (EI) Agent Commercial - Numéro RSAC : douai 822355244 - .
Les informations sur les risques auxquels ce bien est exposé sont disponibles sur le site Géorisques : www. georisques. gouv. fr
83 m²
3 000 €
364 m²
4
3
Sud
Oui
Contact Exp France Corinne SIRIEIX
Contacter gratuitement à l'aide du formulaire ci-dessous.