Offrez-vous une qualité de vie exceptionnelle à Arcachon, entre balades apaisantes sur la plage, effervescence du port de plaisance, soirées au casino et activités culturelles tout au long de l'année. Ce joyau balnéaire reste parfaitement connecté grâce à un accès facile et rapide depuis Bordeaux, que ce soit en voiture ou par la ligne de train directe.
C'est au coeur de cette atmosphère unique que s'intègre une petite copropriété de standing avec ascenseur, idéalement située en plein centre-ville. Cet emplacement de choix vous invite à profiter du luxe absolu du 'tout à pied', avec un accès immédiat aux commerces, aux services et à la plage.
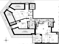
Cet appartement aux prestations haut de gamme s'ouvre sur une entrée avec placard, un cellier pratique et un WC indépendant. L'espace nuit dévoile une majestueuse chambre de 27 m² avec dressing, une seconde chambre avec placard intégré et une salle d'eau moderne. Côté jour, profitez d'un vaste séjour-cuisine de 39 m², véritable espace de convivialité prolongé par un agréable balcon exposé ouest, idéal pour les fins de journée ensoleillées. Une place de parking en sous-sol complète ce bien rare, dont les finitions restent entièrement personnalisables pour créer un intérieur à votre image. Une opportunité rare d'allier l'effervescence arcachonnaise au confort du neuf. -Frais de notaires réduits -Garanties promoteur -Prestations haut de gamme -...
Je suis à dispostion pour plus de détails ou organiser une visite
Honoraires à la charge du vendeur. Dans une copropriété de 30 lots. Aucune procédure n'est en cours. DPE en cours. Les informations sur les risques auxquels ce bien est exposé sont disponibles sur le site Géorisques : georisques.gouv.fr.