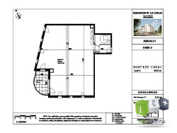
Emplacement numéro 1 - Local professionnel 361.6 m2 avec terras
Haguenau 67500
0
Honoraires à la charge du vendeur.
Sur un axe stratégique idéal pour votre visibilité !
Idéal profession libérale ou activité tertiaire !
Immo Conseil Plus vous propose dans cette future résidence de belle facture en VEFA, plusieurs lots disponibles pour des bureaux allant de 100,42 m2 à 137.91 m2 par étage.
Les bureaux se trouvent au 2ème et 3ème étage et sont desservis par un ascenseur . Ce lot est vendu avec une terrasse de 10.28 m2. Les bureaux sont vendus sous forme de 6 lots modulables pouvant aller jusqu'à 362 m2 par niveau soit 724 m2 maximum pour les 2 niveaux
Chaque bureau sera équipé de son espace sanitaire et cuisine (pas de sanitaires partagés)
Prestations: - Pompe à chaleur AIR/AIR (climatisation réversible) - Triple vitrage PVC avec fenêtres anthracite extérieur et intérieur blanc
CERTIFICATION : RE2020 Normes PMR
Des parkings extérieurs et en sous-sol sont disponibles.
Annonce LOT 2-1 + LOT 2-2 + LOT 2-3 livrés clés en main
PROJET VISIBLE SUR YOUTUBE: Rechercher 'LE GOLD HAGUENAU'
Honoraires à la charge du vendeur. Dans une copropriété de 18 lots. Aucune procédure n'est en cours. DPE en cours. Les informations sur les risques auxquels ce bien est exposé sont disponibles sur le site Géorisques : georisques.gouv.fr.