Honoraires à la charge de l'acquéreur (Prix hors honoraires : 0 euros).
Les charges de location sont prévisionnelles mensuelles avec régularisation annuelle.
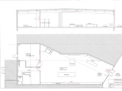
BIGANOS LEROY-MERLIN. AXE IMMO PRO vous propose à la location un local commercial neuf idéalement situé dans la zone du AUCHAN Biganos à proximité du LEROY-MERLIN. Dans un ensemble commercial regroupant des enseignes nationales, nous vous proposons une cellule d'environ 257 m2 totalement aménagée. Cette cellule se compose d'une surface de vente d'environ 200 m2 - d'un espace de stockage et d'un local social d'environ 57 m2. Belle visibilité sur axe passant, affichage enseigne en façade, vitrine à l'avant du local. GRAND PARKING. LOYER : 2.356,00 .HT/Mois. CHARGES: 536,00 .HT/Mois. TAXE FONCIERE: 3.855,00 .HT/An. DEPOT DE GARANTIE : 3 mois de loyer TTC. Disponibilité immédiate. Honoraires agence: 5.000,00 .HT. AXE IMMO PRO - CHRISTOPHE VERLOT: 06.13.39.19.53 Mail: axe-immo@outlook.com REFERENCE: LP157 Visitez notre site Internet www.axeimmopro.fr
Honoraires de 5 000 HT à la charge du locataire. Provision sur charges 535,42 HT/mois, régularisation annuelle. Dépôt de garantie 8 480 . Non soumis au DPE. Les informations sur les risques auxquels ce bien est exposé sont disponibles sur le site Géorisques : georisques.gouv.fr.
Votre conseiller AXE-IMMO PRO / CAILLYMAPY40 : DIRECTEUR D'AGENCE - Christophe VERLOT. visitez notre site Internet www.axeimmopro.fr
257 m²
3
5000 %
01/09/2024
535.42 € / mois
2024
30
Contact CHRISTOPHE VERLOT
Contacter gratuitement à l'aide du formulaire ci-dessous.