Honoraires à la charge de l'acquéreur (Prix hors honoraires : 199000 euros).
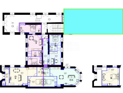
IDÉAL INVESTISSEUR Votre agence Immo mais pas que Perche Sarthois vous propose cet immeuble dont l'intérieur est à réhabiliter et à réagencer en appartements. DPE non exploitable avant travaux. Cet immeuble offre la possibilité de créer 15 logements à louer ou de revendre les appartements séparément une fois rénovés.
Voici le descriptif des surfaces possibles, réparties sur plusieurs niveaux : RDC : Appartement 1 : 37,4 m² Appartement 2 : 45,6 m² Appartement 3 : 74,5 m² Appartement 4 : 47,3 m²
R+1 : Appartement 5 : 17,9 m² Appartement 6 : 28 m² Appartement 7 : 23,4 m² Appartement 8 : 32,3 m² Appartement 9 : 48,8 m²
R+2 : Appartement 10 : 20,4 m² Appartement 11 : 28,2 m² Appartement 12 : 22,9 m² Appartement 13 : 33,1 m² Appartement 14 : 20,4 m² Appartement 15 : 26,3 m²
Après réhabilitation, avec un loyer estimé à 10 /m² par mois, le rendement s'élève à : 5 066 par mois 60 792 par an 607 920 sur 10 ans
Une belle opportunité pour un investisseur cherchant un bien à rénover, avec un potentiel locatif attrayant sur le long terme. Pour plus d'informations et pour organiser une visite, n'hésitez pas à nous contacter.
Honoraires inclus de 6.28% à la charge de l'acquéreur. Prix hors honoraires 199 000 . Classe énergie E, Classe climat E Montant estimé des dépenses annuelles d'énergie pour un usage standard : entre 1500.00 et 2500.00 sur les années 2021, 2022 et 2023 (abonnements compris). Les informations sur les risques auxquels ce bien est exposé sont disponibles sur le site Géorisques : georisques.gouv.fr. Ce bien vous est proposé par un agent commercial (Entreprise individuelle).
Votre conseiller Immo mais pas que Chateau du loir : Jean-Louis Gontier Agent commercial (Entreprise individuelle) RSAC 392 508 024 00040
507 m²
417 €
6904 m²
6.28 %
Consommations énergétiques
Logement économe
200
Logement énergivore (kWhEP/m2/an)
Émissions de gaz à effet de serre
Faible émission de GES
50
Forte émission de GES(kgeqCO2/m2/an)
Contact MASSARO
Contacter gratuitement à l'aide du formulaire ci-dessous.