Honoraires à la charge de l'acquéreur (Prix hors honoraires : 130000 euros).
Idéal investisseurs
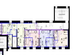
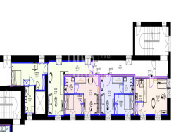
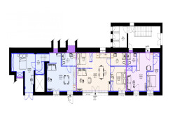
Votre agence Immo mais pas que Perche Sarthois vous propose cet immeuble dont l'intérieur est à réhabiliter et à réagencer en appartements. Le DPE n'est pas exploitable avant les travaux. Cet immeuble offre la possibilité de créer 11 logements à louer ou de revendre les appartements séparément une fois rénovés. Voici le descriptif des surfaces possibles, réparties sur plusieurs niveaux : RDC bas : Appartement 1 : 47,4 m² Appartement 2 : 46,7 m² Appartement 3 : 30,7 m²
RDC haut : Appartement 4 : 20,5 m² Appartement 5 : 22,7 m² Appartement 6 : 23,3 m² Appartement 7 : 41,4 m²
R+1 : Appartement 8 : 22,9 m² Appartement 9 : 23,9 m² Appartement 10 : 24 m² Appartement 11 : 47,8 m²
Après réhabilitation, avec un loyer estimé à 10 /m² par mois, le rendement s'élève à : 3 513 par mois 42 156 par an 421 560 sur 10 ans
Une excellente opportunité pour un investisseur recherchant un bien à rénover avec un potentiel locatif attractif sur le long terme. Pour plus d'informations et pour organiser une visite, n'hésitez pas à nous contacter.
Honoraires inclus de 7.69% à la charge de l'acquéreur. Prix hors honoraires 130 000 . Classe énergie E, Classe climat E Montant estimé des dépenses annuelles d'énergie pour un usage standard : entre 1500.00 et 2500.00 sur les années 2021, 2022 et 2023 (abonnements compris). Les informations sur les risques auxquels ce bien est exposé sont disponibles sur le site Géorisques : georisques.gouv.fr. Ce bien vous est proposé par un agent commercial (Entreprise individuelle).
Votre conseiller Immo mais pas que Chateau du loir : Jean-Louis Gontier Agent commercial (Entreprise individuelle) RSAC 392 508 024 00040
351 m²
399 €
6904 m²
7.69 %
Consommations énergétiques
Logement économe
80
Logement énergivore (kWhEP/m2/an)
Émissions de gaz à effet de serre
Faible émission de GES
50
Forte émission de GES(kgeqCO2/m2/an)
Contact MASSARO
Contacter gratuitement à l'aide du formulaire ci-dessous.