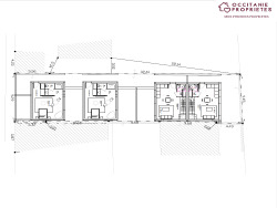
Découvrez cet ensemble immobilier neuf de 4 maisons avec jardins privatifs situés proche de la gare d'Auterive et de toutes les commodités (écoles et commerces).
- 2 maisons T3 de 61 m2 comprenant :
- Pièce de vie lumineuse avec cuisine ouverte de 28 m2
- wc séparé
- A l'étage
- 2 chambres de 12 m2 et 11 m2
- Salle d'eau moderne avec wc
-Terrasse et jardinet privatif
- 2 maisons de 35 m2 comprenant :
- Espace de vie optimisé avec coin cuisine de 23m2
- Salle d'eau avec douche à l'italienne avec wc
Prestations de qualité, double vitrage, jardinet clôturé
Pas de charges de copropriété
Idéal pour investissement locatif
Les informations sur les risques auxquels ce bien est exposé sont disponibles sur le site Géorisques : www.georisques.gouv.fr - Annonce rédigée et publiée par un Agent Mandataire -
192 m²
2 839 €
104 m²
50 m²
10
4
4
4
2025
Consommations énergétiques
Logement économe
96
Logement énergivore (kWhEP/m2/an)
Émissions de gaz à effet de serre
Faible émission de GES
2
Forte émission de GES(kgeqCO2/m2/an)
Contact Sylvie MITARD
Contacter gratuitement à l'aide du formulaire ci-dessous.