Honoraires à la charge de l'acquéreur (Prix hors honoraires : 0 euros).
Les charges de location sont prévisionnelles mensuelles avec régularisation annuelle.
RÉSEAU BROKERS HERVÉ BROUSSON 07 45 52 78 81 PRÉSENTE
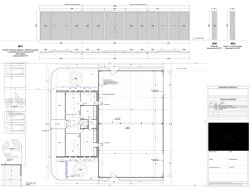
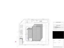
À LOUER ENTREPÔT LIVRAISON 1ER TRIMESTRE 2025
En bail en état futur d'achèvement sur Bollène un bâti de 463m2 répartis en 359m2 d'entrepôt et/ou local d'activité et 104m2 de bureaux sur 2 377m2 de terrain.. Construction en parpaing, parois et toit double peau, non chauffé, dalle charge lourde, 2 portes sectionnelles 4*4, hauteur sous plafond 6,6m, 380v, skydômes, accès PL portail électrique, aire de retournement. Bureaux 2 de 21m2, 2 de 11,5m2, salle de réunion 23m2, local stockage 4,3m2, WC PMR, hall d'entrée 6,8m2, climatisation réversible. Entièrement clôturé, 10 places de parking dont une PMR, tout à l'égout et fibre. PC accepté et recours des tiers purgé, le bâtiment est fait par un professionnel qui à sa propre entreprise de bâtiment.
LIVRAISON 032025
BAIL COMMERCIAL ÉCHÉANCE MENSUELLE À ÉCHOIR RÉVISION ANNUELLE INDEX ILC DÉPÔT DE GARANTIE DEUX MOIS DE LOYER HT HC ACTE AUTHENTIQUE FRAIS PARTAGÉS BAILLEUR PRENEUR LOYER ANNUEL 44 568 HORS TAXE TAXE FONCIÈRE À DÉTERMINER QUI SERA À LA CHARGE DU PRENEUR FRAIS D'AGENCE 20% DU LOYER ANNUEL HT HC CHARGE PRENEUR
Honoraires de 8 913 HT à la charge du locataire. Dépôt de garantie 7 428 . Non soumis au DPE. Les informations sur les risques auxquels ce bien est exposé sont disponibles sur le site Géorisques : georisques.gouv.fr.