Au coeur de la commune de Thônes, nous vous proposons à la location un bâtiment d'activité de grande envergure, développant une surface totale d'environ 5 245 m².
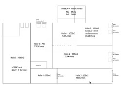
Possibilité de division en louant des surfaces à partir de 600 m² (VOIR PLAN EN PHOTOS).
Situé à Thônes, cet actif bénéficie d'un positionnement particulièrement recherché sur le bassin des Aravis. Ce secteur constitue un véritable carrefour économique local, à la croisée : - des flux entre Annecy et les stations des Aravis (Manigod, La Clusaz, Le Grand-Bornand), - d'un tissu dynamique mêlant artisanat, industrie et logistique, - d'une zone à forte attractivité pour les entreprises en quête de surfaces fonctionnelles.
Sur Thônes et ses environs immédiats, les disponibilités en immobilier d'activité de cette taille sont extrêmement limitées. Cet actif représente donc une opportunité unique pour : - implanter une activité nécessitant de grands volumes, - regrouper plusieurs unités sur un même site, - ou sécuriser un foncier stratégique dans une zone à forte tension.
Le site profite d'une bonne accessibilité routière, facilitant les flux logistiques et les déplacements des collaborateurs, tout en restant à proximité immédiate des grands axes du territoire.
CARACTÉRISTIQUES PRINCIPALES : - Surface totale : environ 5 245 m² - Possibilité de location partielle : à partir de 600 m², jusqu'à l'entièreté du site - Bâtiment composé de plusieurs halles + bureaux et locaux sociaux - Site adapté aux activités artisanales, industrielles ou logistiques
Conformément au PLUi en vigueur, les activités commerciales ou de services recevant du public particulier ne sont pas autorisées. Le bien est donc destiné à des activités professionnelles de type artisanat, production, stockage ou logistique.
Conditions (pour 4 200 m²) : - Bail commercial 3 / 6 / 9 ans, - Loyer annuel hors taxes hors charges : 294 000, soit 24 500 mensuel (70 HT HC / m² / an), - Taxe foncière en sus refacturée au preneur (environ 20 000).
VOIR PLAN EN PHOTOS POUR LES CONDITIONS DE LOCATION DE SURFACE A PARTIR DE 600 m².
AVINIM RESEAU BROKERS est le premier cabinet immobilier d'entreprise structuré en réseau de mandataires. Nous maillons avec notre équipe de 80 Brokers une grande partie du territoire national pour accompagner nos entreprises clientes dans leurs recherches de commerces, bureaux, locaux d'activités, immeubles et fonciers. www.reseau-brokers.com
Honoraires de 8 100 HT à la charge du locataire. DPE en cours. Les informations sur les risques auxquels ce bien est exposé sont disponibles sur le site Géorisques : georisques.gouv.fr.