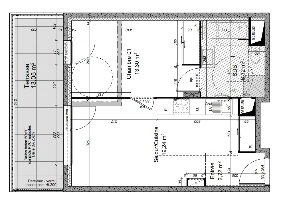
Appartement Lumineux et Spacieux à Vendre Découvrez ce bel appartement appartement de 57 m² situé dans un immeuble de standing construit en 1990. Ce logement de 3 pièces, comprenant 2 chambres et une salle de bains, est idéal pour une famille ou un couple souhaitant profiter d'un cadre de vie agréable et fonctionnel.
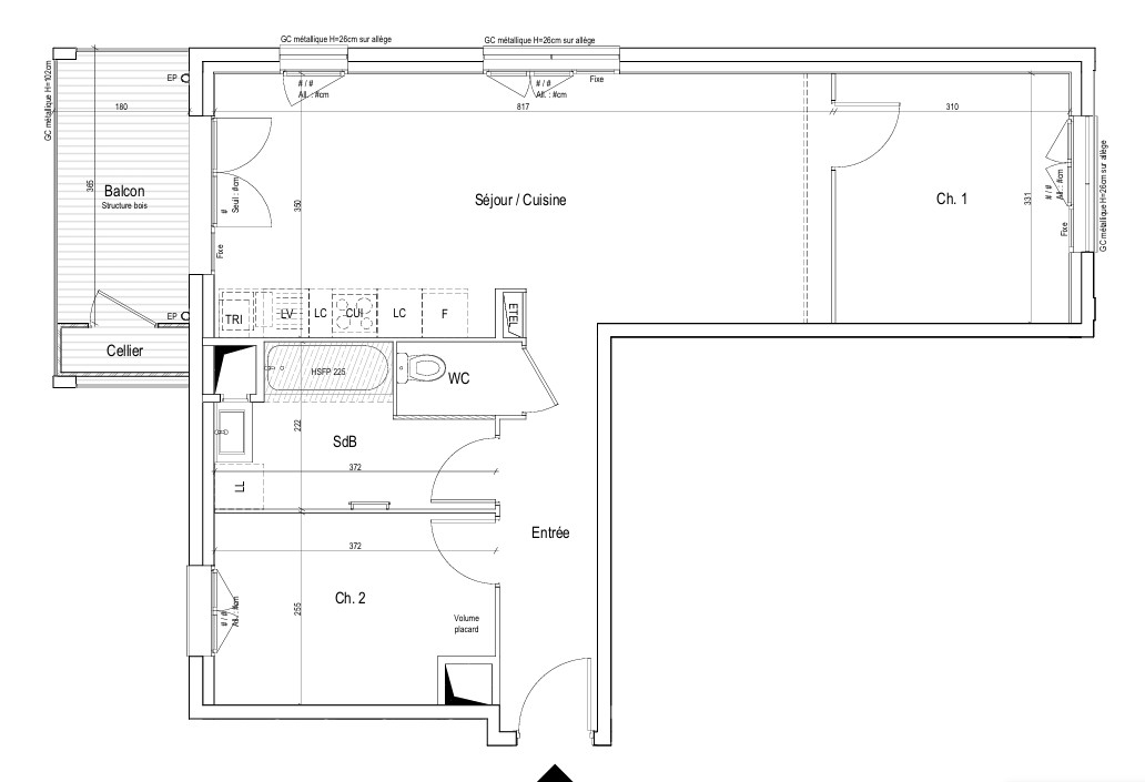
L'appartement est non meublé, Le bien comprend une entrée avec placard, un séjour avec une cuisine aménagée, salle de bains avec wc séparé, deux chambres. La terrasse de 11 m² est un véritable atout, offrant un espace extérieur pour profiter des beaux jours. Un garage double de 30.74 m² complète ce bien
L'appartement est situé au rez de chaussée surélève , bénéficiant d'une vue dégagée et d'une exposition ouest, idéale pour des soirées ensoleillées. Les parties communes de l'immeuble sont en bon état, garantissant un environnement propre et bien entretenu. ravalement de l'immeuble fait récemment.
Le chauffage individuel par une pompe a chaleur assure une gestion optimale de la température pour un coût modique, l'appartement est très lumineux.
Ne manquez pas cette opportunité unique de devenir propriétaire de ce bien exceptionnel. Contactez nous dès maintenant pour organiser une visite et laissez-vous séduire par ce havre de paix.
À proximité, vous trouverez plusieurs commodités pratiques, dont des écoles, des supermarchés, et des parcs pour des moments de détente en famille.
Honoraires à la charge du vendeur. Dans une copropriété de 15 lots. Procédure en cours : pas de procedure. Classe énergie C, Classe climat A Montant estimé des dépenses annuelles d'énergie pour un usage standard : entre 780.00 et 1090.00 sur les années 2021, 2022 et 2023 (abonnements compris). Les informations sur les risques auxquels ce bien est exposé sont disponibles sur le site Géorisques : georisques.gouv.fr.
Votre conseiller Cartimo-Lyon : Dirigeant. - Frédéric GILBERT Carte T 69012018000025925 RCP Allianz
57 m²
3 649 €
3
2
1
1
1990
Ouest
Oui
Oui (15 lots)
Consommations énergétiques
Logement économe
164
Logement énergivore (kWhEP/m2/an)
Émissions de gaz à effet de serre
Faible émission de GES
5
Forte émission de GES(kgeqCO2/m2/an)
Contact Cartimo-Lyon
Contacter gratuitement à l'aide du formulaire ci-dessous.