ERSTEIN - Appartement F3 de 63m² dans petit immeuble
Erstein 67150
0
Honoraires à la charge du vendeur.
À VENDRE F3 de 63, m² à Erstein RDC surélevé 155 000 FAI.
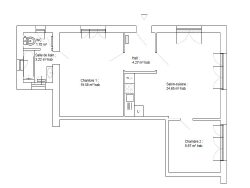
Situé au rez-de-chaussée surélevé d'un petit immeuble de caractère à Erstein, cet appartement 3 pièces de 63,29 m² offre un fort potentiel d'aménagement dans un secteur recherché, à proximité de la piscine municipale et des stades de foot.
L'appartement est composé de deux chambres, d'un lumineux séjour (avec coin cuisine arrivées et attentes prévues), d'une salle de bain, ainsi que de toilettes séparées avec fenêtre ronde type oeil-de-boeuf, apportant une touche d'originalité.
Belle hauteur sous plafond, chaudière individuelle au gaz.
Le bien est complété par une cave privative.
Prix : 155 000 FAI (frais d'agence inclus) Emplacement : à deux pas des infrastructures sportives. Idéal pour un premier achat ou un investissement locatif, ce bien attend votre projet !
Dans un petit immeuble de 5 lots, syndic bénévole, faibles charges.
Honoraires à la charge du vendeur. Dans une copropriété de 5 lots. Quote-part moyenne du budget prévisionnel 500 /an. Aucune procédure n'est en cours. Classe énergie F, Classe climat F Logement à consommation énergétique excessive. Montant estimé des dépenses annuelles d'énergie pour un usage standard : entre 1640.00 et 2330.00 sur les années 2021, 2022 et 2023 (abonnements compris). Les informations sur les risques auxquels ce bien est exposé sont disponibles sur le site Géorisques : georisques.gouv.fr.
Votre conseiller MYAGENCE : Gérant - Yves MANGOLD Carte T CPI67012023000000029 RCP MMA IARD - 148561510
63.29 m²
2 449 €
25 m²
3
2
1
1
1 sur 2
20.00 € / mois
1935
Oui
1
Oui (5 lots)
Consommations énergétiques
Logement économe
419
Logement énergivore (kWhEP/m2/an)
Émissions de gaz à effet de serre
Faible émission de GES
83
Forte émission de GES(kgeqCO2/m2/an)
Contact Yves MANGOLD
Contacter gratuitement à l'aide du formulaire ci-dessous.