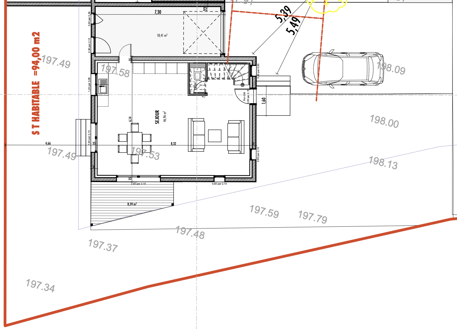
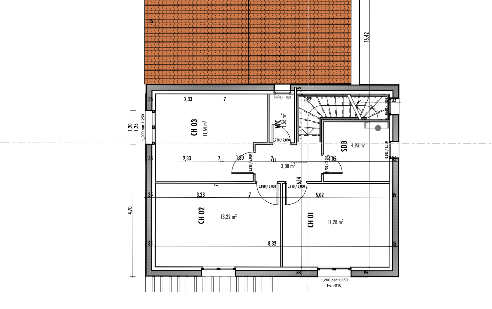
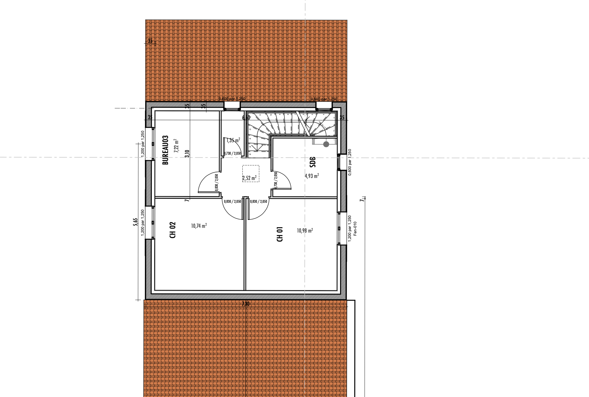
Rare à la vente! Lancement commercial. Maison de type 3 (2 chambres) de 77m² avec extérieur de 100m². En bas, un séjour /cuisine avec WC vous permettront de profiter de la luminosité. A l'étage, le coin nuit vous accueillera avec une salle de bain et un WC pour le confort des occupants. Deux parkings inclus.
Au sein d'une résidence de 20 maisons sur un étage. Venez découvrir cette superbe résidence à quelques minutes en voiture du centre d'Aix-en-Provence (15 minutes)/ Aix Sud. Composée de seulement 20 villas en R+1, cette résidence intimiste dans un environnement pavillonnaire offrira à ses occupants tout le confort désiré: piscine dans la résidence, matériaux de qualité, rafraîchisseur d'air. Réparties sur 3 bâtiments, les maisons bénéficient pour la plupart d'une double orientation, offrant un confort maximal aux occupants. Prestations haut de gamme. Offres en cours. Nous consulter.
Prenez Rendez-Vous Dès Maintenant! Ne manquez pas cette opportunité de vivre dans un lieu unique. Contactez dès aujourd'hui votre conseiller pour plus d'informations et pour organiser une visite. VEFA. Résidence neuve. Prestations haut de gamme. Prix direct promoteur. Eligible PTZ. Offres promoteurs en cours : nous consulter. Actable rapidement. Frais de notaire réduits. Livraison: 4T 2026
Honoraires à la charge du vendeur. Dans une copropriété de 20 lots. Aucune procédure n'est en cours. Non soumis au DPE. Les informations sur les risques auxquels ce bien est exposé sont disponibles sur le site Géorisques : georisques.gouv.fr.
Votre conseiller Mirandole Patrimoine : présidente - Lidwine GIRAUD Carte T CPI13102024000000049 RCP 6944930704/RD00073755Y
Villa
77 m²
6 870 €
3
2
1
1
2
Oui
Oui
1
Oui
Oui (20 lots)
Contact LIDWINE GIRAUD
Contacter gratuitement à l'aide du formulaire ci-dessous.