Étaples : grand appartement neuf à vendre 204000 EUR
Étaples 62630
0
Honoraires à la charge du vendeur.
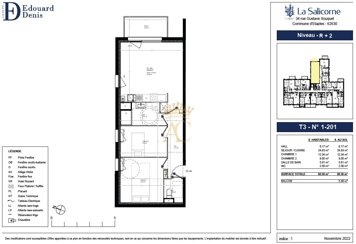
Placement immobilier de qualité avec ce bel appartement disposant d'une chambre facile à louer et idéal pour du locatif à Étaples. Dans un bel ensemble immobilier tout neuf qui sera livré en 2026. Logement intéressant dans l'optique d'une première acquisition. Pour en savoir plus ou vous faire accompagner dans votre recherche de logement, entrez rapidement en contact avec Agence Centrale. Appartement composé d'une salle de bain, une chambre, un espace cuisine et un coin salon de 21.28m2. La surface intérieure habitable développe 45.65m2 en loi Carrez. Des fenêtres à double vitrage garantissent le calme du lieu. Consomme peu d'énergie, ayant reçu le label de bâtiment à basse consommation qui garantit une forte isolation thermique. À l'extérieur, vous disposerez d'un charmant balcon occupant 5.40m2, ce qui porte la surface à vivre à 51.05m2. Domicile au premier étage dans un immeuble avec ascenseur. Il vous fait profiter d'un parking privatif. Prix :204 000 euros. Les informations sur les risques auxquels ce bien est exposé sont disponibles sur le site Géorisques : www.georisques.gouv.fr