Exclusivité - Appartement de 2022 en dernier étage avec asce
Domène 38420
0
Honoraires à la charge du vendeur.
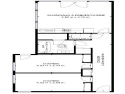
Votre agence Cristalimmo vous présente en exclusivité un appartement livré en 2022. Situé dans le centre de la commune de Domène, il se compose d'une entrée ouvrant sur 2 chambres disposant de rangements intégrés. L'une d'elle ouvre sur un balcon. Salle de bain et WC séparé. Cuisine équipée ouverte sur séjour bénéficiant d'une terrasse exposée plein sud. Appartement situé au 2ème et dernier étage avec ascenseur, aux normes Personnes à Mobilité Réduite. Possibilité de garage privatif en supplément pour 20 000 EUR. Immeuble composé de 2 lots principaux. Possibilité d'installation d'une profession libérale : généraliste, ostéopathe,... A proximité immédiate de toutes les commodités : Mairie, écoles, commerces, transports en commun. Bien rare sur le secteur. Visite virtuelle disponible sur demande.
Les informations sur les risques auxquels ce bien est exposé sont disponibles sur le site Géorisques : www.georisques.gouv.fr
68.32 m²
3 879 €
22 m²
3
2
1
1
2 sur 2
05/08/2025
2022
Sud
Ouest
Oui
1
1
Oui
Oui
Oui
Oui
Consommations énergétiques
Logement économe
80
Logement énergivore (kWhEP/m2/an)
Émissions de gaz à effet de serre
Faible émission de GES
2
Forte émission de GES(kgeqCO2/m2/an)
Contact FLUCHAIRE
Contacter gratuitement à l'aide du formulaire ci-dessous.