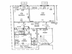
Dans un bel immeuble bien entretenu, situé au 7ème étage (ascenseur jusqu'au 6ème), cet appartement lumineux bénéficie d'une vue dégagée sur le quartier et d'un agencement fonctionnel : une entrée avec rangements, un vaste séjour plein de lumière, une cuisine indépendante, une chambre confortable, une salle de bains et des WC séparés. Une cave, un local à vélos et poussettes ainsi qu'un système de chauffage central complètent le confort de ce bien. L'accès à l'immeuble est sécurisé par digicode et interphone. Actuellement loué 1 157 EUR hors charges (+220 EUR de charges), cet appartement offre un revenu locatif mensuel total de 1 377 EUR, garantissant une rentabilité immédiate et sécurisée jusqu'au départ du locataire. Une adresse centrale, un rendement solide avec une perspective de valorisation : une opportunité stratégique pour tout investisseur à la recherche d'un placement pérenne sur Boulogne. Beau potentiel de valorisation une fois libre, rare sur le secteur. Dossier sur demande. Pour toute visite ou information, contactez AXIMMO Paris 9
51.14 m²
7 137 €
3 m²
2
1
1
1
7 sur 7
1850
Nord
2 (3 m²)
Oui
Oui
Oui
Oui (25 lots)
Consommations énergétiques
Logement économe
206
Logement énergivore (kWhEP/m2/an)
Émissions de gaz à effet de serre
Faible émission de GES
27
Forte émission de GES(kgeqCO2/m2/an)
Contact
Contacter gratuitement à l'aide du formulaire ci-dessous.