EXCLUSIVITÉ - ROUBAIX CENTRE - APPARTEMENT T2 - 45 m² - ASCENSEUR - PARKING PRIVATIF SOUS-TERRAIN
EMPLACEMENT IDÉAL - AU PIED DE LA MAIRIE ET DU MÉTRO !
Venez découvrir cet agréable appartement de 45 m² situé au 4#7497; étage avec ascenseur, dans une résidence récente et sécurisée, au pied de la Mairie de Roubaix et de tous les commerces, à deux pas du métro et à 5 minutes de la gare Jean-Lebas.
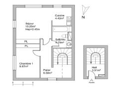
L'appartement se compose d'une entrée avec rangements au rez-de-chaussée, on monte tout de suite les escaliers pour y découvrir un séjour lumineux de 20 m² offrant une belle vue dégagée avec une cuisine ouverte, une chambre spacieuse, ainsi que d'une salle de bain avec baignoire et WC.
Vous profiterez également d'une place de stationnement privative en sous-sol, un vrai atout en centre-ville !
Charges de copropriété : environ 1.400 € / an
Taxe foncière : environ 1.029 €
DPE : E / GES : D
Idéal premier achat ou investissement locatif (secteur très recherché et bien desservi, loué pendant 16 ans sans aucune vacance locative.)
Ce bien vous est proposé au prix de 109.900 € - honoraires agence charge vendeurs.
Pour visiter, veuillez contacter (EI) Simon DA COSTA au O6.58.39.41.69
Agent commercial
SIRET : 90282814400011
RSAC : 2021AC00348
Réf. VSDC416
Les informations sur les risques auxquels ce bien est exposé sont disponibles sur le site Géorisques : www.georisques.gouv.fr
Les informations sur les risques auxquels ce bien est exposé sont disponibles sur le site Géorisques : www.georisques.gouv.fr
45 m²
2 442 €
2
1
1
1
4 sur 4
2009
Séparée
Oui
Consommations énergétiques
Logement économe
279
Logement énergivore (kWhEP/m2/an)
Émissions de gaz à effet de serre
Faible émission de GES
8
Forte émission de GES(kgeqCO2/m2/an)
Contact
Contacter gratuitement à l'aide du formulaire ci-dessous.