Exclusivité - ST PRIEST (Centre) - Appartement T3 (76 m2) - Gar
Saint-Priest 69800
0
Honoraires à la charge du vendeur.
César & Brutus, l'Agence immobilière Lyonnaise indépendante une nouvelle fois élue Agence de l'Année 2025 en Auvergne-Rhône-Alpes, vous présente en exclusivité à proximité de l'Hôtel de Ville, dans une copropriété récente, verdoyante, calme et sécurisée, cet appartement de Type 3 en parfait état d'environ 76 m2 situé au 3e étage d'un bâtiment de 5 étages, datant de 2022 et équipé d'un ascenseur.
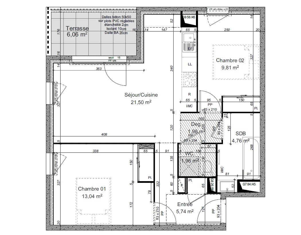
L'appartement aux normes PMR comprend : une entrée avec placard, un large WC indépendant, une salle de bains, un salon-salle à manger avec cuisine entièrement équipée d'environ 33 m2 attenant à une terrasse couverte d'environ 8 m2, un dégagement dissociant le coin jour du coin nuit et ses 2 chambres d'environ 10 et 13 m2 avec placards.
L'appartement est attenant à un rooftop d'environ 148 m2 gratuitement privatisable.
Un box souterrain complète le bien.
A noter que la résidence est entièrement sécurisée. Un système de vidéosurveillance couvre les halls d'entrée, les locaux vélos, les locaux poubelles ainsi que les deux niveaux de sous-sol et de stationnements souterrains. Les accès aux bâtiments et l'activation des ascenseurs se font uniquement par Vigik.
La taxe foncière 2025 s'élève à 1 114.
La copropriété est composée de 66 appartements répartis sur 3 bâtiments et les charges sont d'environ 200/mois et comprennent notamment : l'eau chaude sanitaire, l'eau froide et le chauffage (avec compteurs individuels) ainsi que l'entretien des bâtiments, des espaces verts, des ascenseurs et la vidéosurveillance.
A savoir qu'un appartement de Type 2 appartenant à la copropriété est loué meublé à l'année et ses loyers tout comme la revente d'électricité des panneaux photovoltaïques, contribuent donc à la réduction des charges collectives
Vous trouverez directement à proximité toutes les commodités : la ligne de bus C25, la ligne de Tramway T2 ainsi que le Métro D et la station gare de Parilly, Leclerc Drive, école, lycée, commerces, bureau de Poste, Mairie etc...
Pour plus d'informations, n'hésitez pas à contacter votre conseiller César & Brutus :
Mario PAOLELLA O6 32 64 37 45 RSAC VIENNE 881 606 784 - EI
_Parce que votre bien mérite le plus grand soin.
Référence : MPAO-9607
Honoraires à la charge du vendeur. Dans une copropriété de 175 lots. Aucune procédure n'est en cours. Classe énergie C, Classe climat C Montant moyen estimé des dépenses annuelles d'énergie pour un usage standard, établi à partir des prix de l'énergie de l'année 2023 : entre 470.00 et 660.00 . Les informations sur les risques auxquels ce bien est exposé sont disponibles sur le site Géorisques : georisques.gouv.fr. Ce bien vous est proposé par un agent commercial (Entreprise individuelle).
Votre conseiller CESAR ET BRUTUS : Mario PAOLELLA Agent commercial (Entreprise individuelle) RSAC 881606784