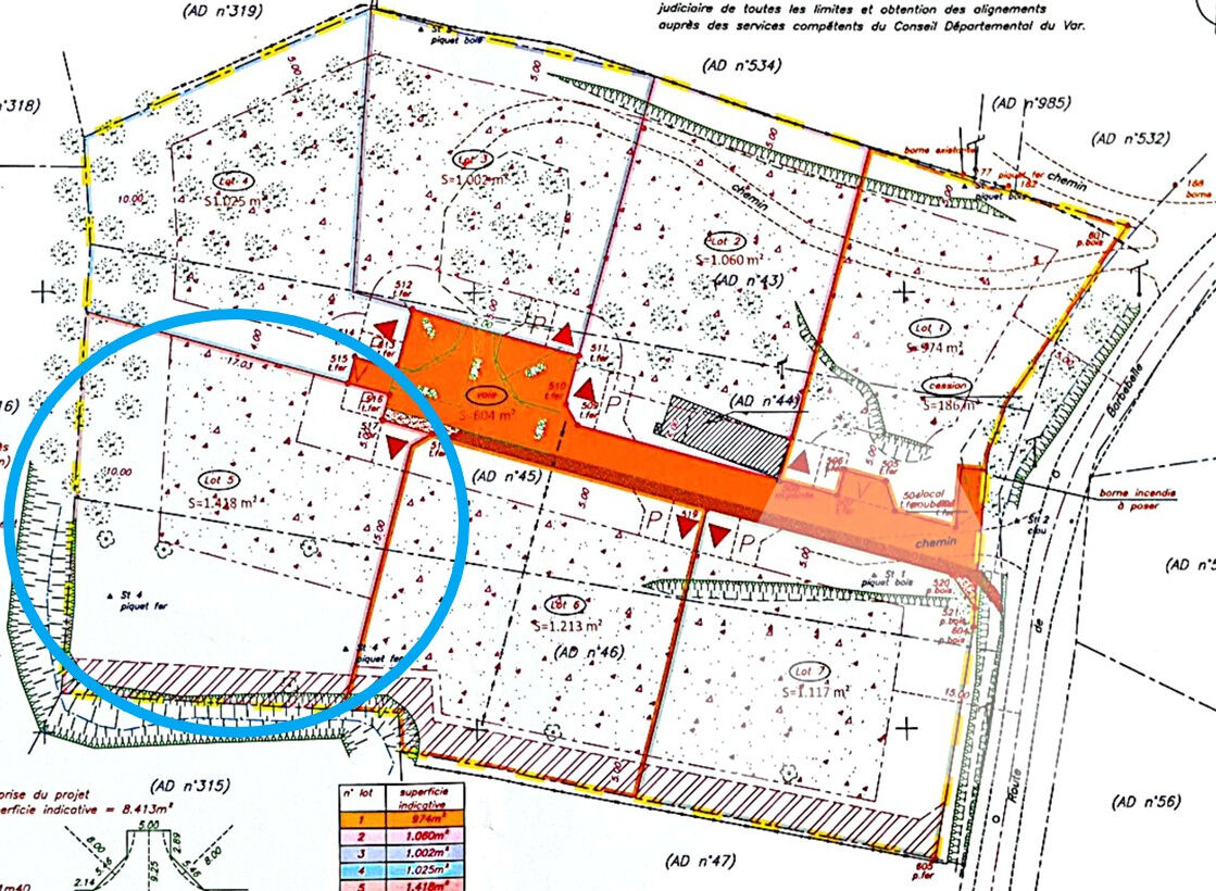
En exclusivité, je vous propose ce terrain constructible de 1174m² situé dans un quartier résidentiel recherché et hors lotissement. Ce terrain rare, entièrement plat et exposé plein sud, permet une emprise au sol de 234 m², avec une hauteur maximale autorisée de 6,5 m à l'égout du toit. Un projet de plain-pied ou à étage y est facilement envisageable. Conformément à l'article 17 du règlement de la zone Uc du P.L.U., le pourcentage d'espaces non imperméabilisés doit représenter au moins 60 % de la surface du terrain. Minimum 50 % de ces espaces doivent être traités en espaces de pleine terre et être végétalisés. L'assainissement autonome est obligatoire. Les réseaux d'eau, d'électricité et de télécommunications sont disponibles à proximité immédiate, simplifiant ainsi la viabilisation. Contactez-moi pour organiser une visite ou obtenir les documents réglementaires. Les informations sur les risques auxquels ce bien est exposé sont disponibles sur le site Géorisques : www.georisques.gouv.fr.