EXCLUSIVITE : TOULOUSE-RUE DE CUGNAUX - T3 traversant en RDC INTERIEUR AVEC 2 BELLES LOGGIAS DE 20 m2 et un PK Sous-sol
Toulouse 31300
0
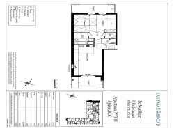
EXCLUSIVITE : TOULOUSE-RUE DE CUGNAUX - T3 en RDC INTERIEUR AVEC 2 BELLES LOGGIAS de 20 m2 ET PARKING SOUS-SOL Située 18 rue de Cugnaux, la résidence "LE MOSAÏQUE" est proche des transports en commun (Bus au pied de la résidence, Tramway et métro des ARENES), ainsi que des commodités (commerces, clinique, collège-lycée) et à 2 pas de l'hyper centre. Dans cette belle résidence aux normes BBC, vous y trouverez un appartement T3 de 62.95 m2, bénéficiant d'une double exposition donnant sur l' intérieur de la résidence. Il se compose : d'une entrée avec ensemble penderie/étagères, d'une cuisine équipée et meublée (meubles hauts et bas, évier, plan de travail, plaque de cuisson vitrocéramique 4 feux, hotte, emplacements frigo), ouverte sur la pièce de vie. Celle-ci, très facile à agencer, donne accès à une belle loggias de 9.90m². Deux belles chambres donnent également accès à une loggia de 10.4m2. Le logement est doté d'une salle de bain, munie d'une baignoire, meuble sous vasque et miroir lumineux, d'un WC indépendant et de rangements, ainsi que d'une place de parking en sous-sol.. Mode de production de chauffage et eau : gaz collectif Vendu LIBRE D'OCCUPATION Prix : 209 000 FAI (dont 11 000 TTC d'honoraires à la charge du vendeur)
62.95 m²
3 320 €
24.15 m²
3
2
1
1
215 € / mois
2014
Gaz
Sud
Nord
Oui
1
Consommations énergétiques
Logement économe
95
Logement énergivore (kWhEP/m2/an)
Émissions de gaz à effet de serre
Faible émission de GES
18
Forte émission de GES(kgeqCO2/m2/an)
Contact INEXIA-IMMO
Contacter gratuitement à l'aide du formulaire ci-dessous.