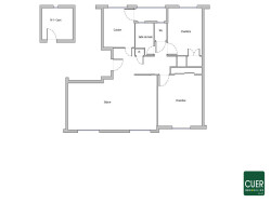
Exclusivité Appartement T3 de 68m² situé 'Rue Barnave' à Valence, au 4? et dernier étage d'un immeuble des années 60. Il se compose d'un salon / salle à manger lumineux avec vue dégagée, d'une cuisine séparée s'ouvrant sur une loggia / buanderie. L'espace nuit comprend deux chambres ainsi qu'une salle de bains. Chauffage individuel gaz. Cave. Double vitrage.
Honoraires à la charge du vendeur. Dans une copropriété de 52 lots. Quote-part moyenne du budget prévisionnel 911 /an. Aucune procédure n'est en cours. Classe énergie D, Classe climat D Montant moyen estimé des dépenses annuelles d'énergie pour un usage standard, établi à partir des prix de l'énergie de l'année 2021 : entre 914.00 et 1236.00 . Les informations sur les risques auxquels ce bien est exposé sont disponibles sur le site Géorisques : georisques.gouv.fr.
68 m²
1 824 €
27 m²
3
2
1
1 (séparé)
4 sur 4
76.00 € / mois
1969
1
Oui
Oui (52 lots)
Consommations énergétiques
Logement économe
178
Logement énergivore (kWhEP/m2/an)
Émissions de gaz à effet de serre
Faible émission de GES
38
Forte émission de GES(kgeqCO2/m2/an)
Contact CUER IMMOBILIER - BLAY
Contacter gratuitement à l'aide du formulaire ci-dessous.